463 MARTIGUES
Basic Information
List Status
Active
Property Type
Residential
Address
463 MARTIGUES
KISSIMMEE, FL 34759
United States
Current Price
$344,900.00
Square Feet
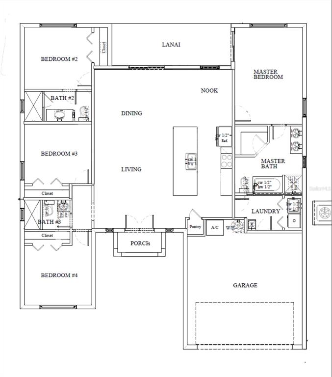
1682
Price Per Square Foot
$205.05
List Office Name
HOMEZALE
List Agent Full Name
David Bustamante, PA
Subdivision Name
POINCIANA VILLAGE 5 NBHD 1
Interior Information
Appliances
Dishwasher, Disposal, Electric Water Heater, Microwave, Range, Refrigerator
Bedrooms
4
Bathrooms
3
Bathrooms Full
3
Cooling
Central Air
Flooring
Carpet, Ceramic Tile
Heating
Central, Electric
Interior Features
Ceiling Fan(s), Kitchen/Family Room Combo, Open Floorplan, Solid Surface Counters, Tray Ceiling(s), Walk-In Closet(s)
Pet Restrictions
There are no breed and no weight restrictions for either cats or dogs.
Maximum of 2 dogs and 2 cats allowed. County lease laws enforced.
Farm animals are not allowed i.e. chickens goats ect.
Maximum of 2 dogs and 2 cats allowed. County lease laws enforced.
Farm animals are not allowed i.e. chickens goats ect.
Utilities
BB/HS Internet Available, Cable Available, Electricity Connected, Public, Sewer Connected, Street Lights, Water Connected
Exterior Information
PropertySubType
Single Family Residence
Construction Materials
Block, Stucco
Exterior Features
French Doors, Sliding Doors
Foundation Details
Slab
Lot Size Acres
0.18
Lot Size Square Feet
7710
Lot Features
City Lot, In County
Roof
Shingle
Additional Information
Community Features
Clubhouse, Fitness Center, Park, Playground, Pool, Racquetball, Tennis Court(s)
Country
US
County / Parish
Osceola
Postal Code
34759
Street Name
MARTIGUES
Street Number
463
Street Suffix
DRIVE
Tax Year
2024
Total Acreage
0 to less than 1/4
Year Built
2025
Financial and Legal Information
Association Fee Frequency
Monthly
Association Fee Includes
Cable TV, Internet
Association Fee Requirement
Required
Association Fee
90
Cumulative Days On Market
57
Days On Market
57
Flood Zone Code
AE
List Price
$344900.00
Listing Contract Date
July 7, 2025
Monthly HOA Amount
90
Original List Price
359900
Parcel Number
252628613820920120
Pets Allowed
Yes
Special Listing Conditions
None
Tax Annual Amount
731.63
Tax Book Number
3-144
Tax Lot
12
Zoning
OPUD
Tax Legal Description
POINCIANA V5 NBD 1 PB 3 PG 144 BLK 2092 LOT 12 19/27/29