4592 LIGHTHOUSE

Basic Information

List Status
Active
Property Type
Residential
Last Updated
MLS Listing Updated
Created
Address

4592 LIGHTHOUSE
ORLANDO, FL 32808
United States

Current Price
$180,000.00
Square Feet
1329
Price Per Square Foot
$135.44
List Office Name
THE SIMON SIMAAN GROUP
List Agent Full Name
Simon Simaan
Subdivision Name
CARMEL OAKS CONDO PH 04

Interior Information

Appliances
Dishwasher, Electric Water Heater, Range, Range Hood, Refrigerator
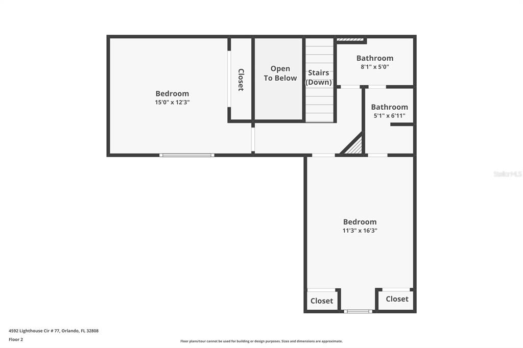
Bedrooms
2
Bathrooms
2
Bathrooms Full
1
Bathrooms Half
1
Cooling
Central Air
Flooring
Carpet, Ceramic Tile
Heating
Central, Electric
Interior Features
Open Floorplan, PrimaryBedroom Upstairs, Thermostat
Pet Restrictions
Per Condo Covenants
Utilities
Cable Available, Electricity Connected, Sewer Connected, Street Lights

Exterior Information

PropertySubType
Townhouse
Construction Materials
Wood Frame, Wood Siding
Exterior Features
Courtyard, Private Entrance, Sidewalk, Sliding Doors
Foundation Details
Slab
Lot Size Acres
0.02
Lot Size Square Feet
663
Lot Features
In County
Roof
Shingle

Additional Information

Community Features
None
Country
US
County / Parish
Orange
Postal Code
32808
Street Name
LIGHTHOUSE
Street Number
4592
Street Suffix
CIRCLE
Tax Year
2024
Total Acreage
0 to less than 1/4
Year Built
1983

Financial and Legal Information

Association Fee Frequency
Monthly
Association Fee Includes
Escrow Reserves Fund, Maintenance Grounds, Manager
Association Fee Requirement
Required
Association Fee
227
Cumulative Days On Market
1
Days On Market
1
Flood Zone Code
X
Flood Zone Date
September 9, 2009
Flood Zone Panel
12095C0230F
List Price
$180000.00
Listing Contract Date
December 12, 2025
Monthly HOA Amount
227
Original List Price
180000
Parcel Number
052229118920770
Pets Allowed
Breed Restrictions
Special Listing Conditions
None
Tax Annual Amount
2116
Tax Book Number
8-35
Tax Lot
770
Zoning
R-3A/W/RP
Tax Legal Description
CARMEL OAKS PHASE 4 CONDO CB 8/35 BLDG 20 UNIT 77

Learn More About This Property

CAPTCHA
"