446 AUTUMN STREAM

Basic Information

List Status
Active
Property Type
Residential
Last Updated
MLS Listing Updated
Created
Address

446 AUTUMN STREAM
AUBURNDALE, FL 33823
United States

Current Price
$274,000.00
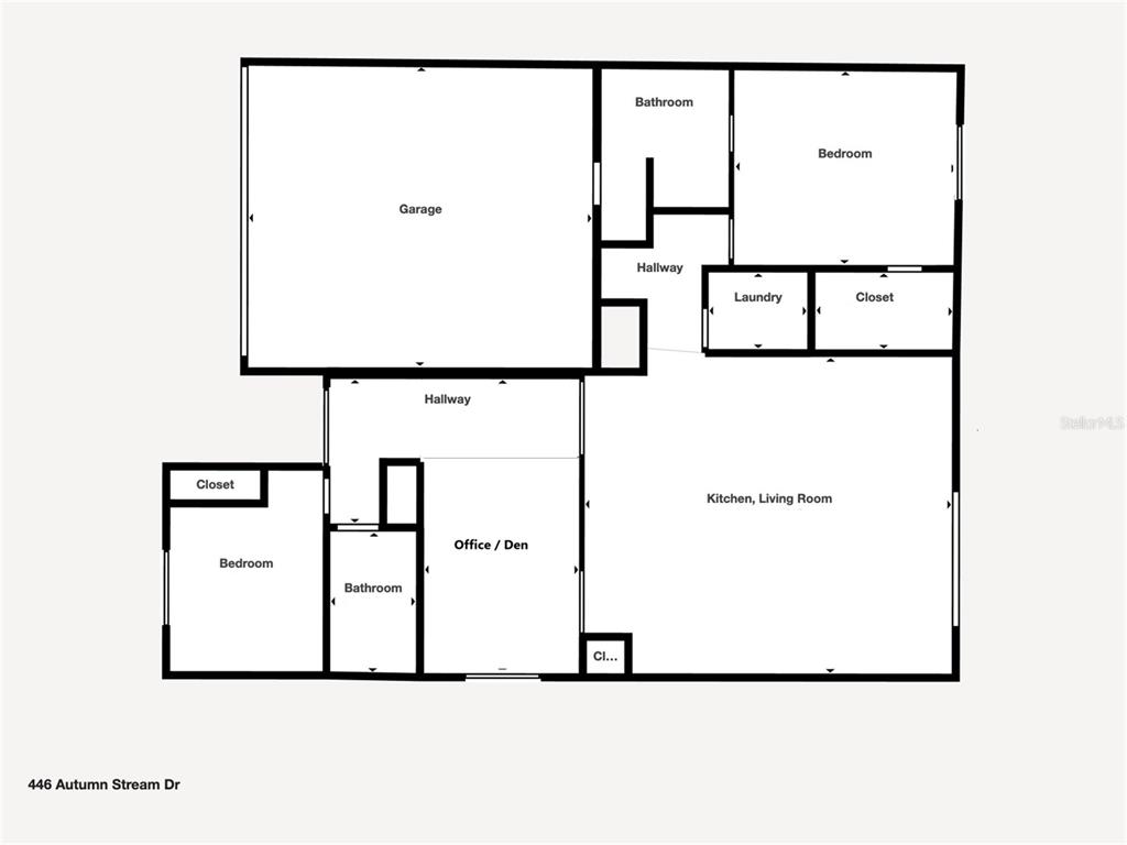
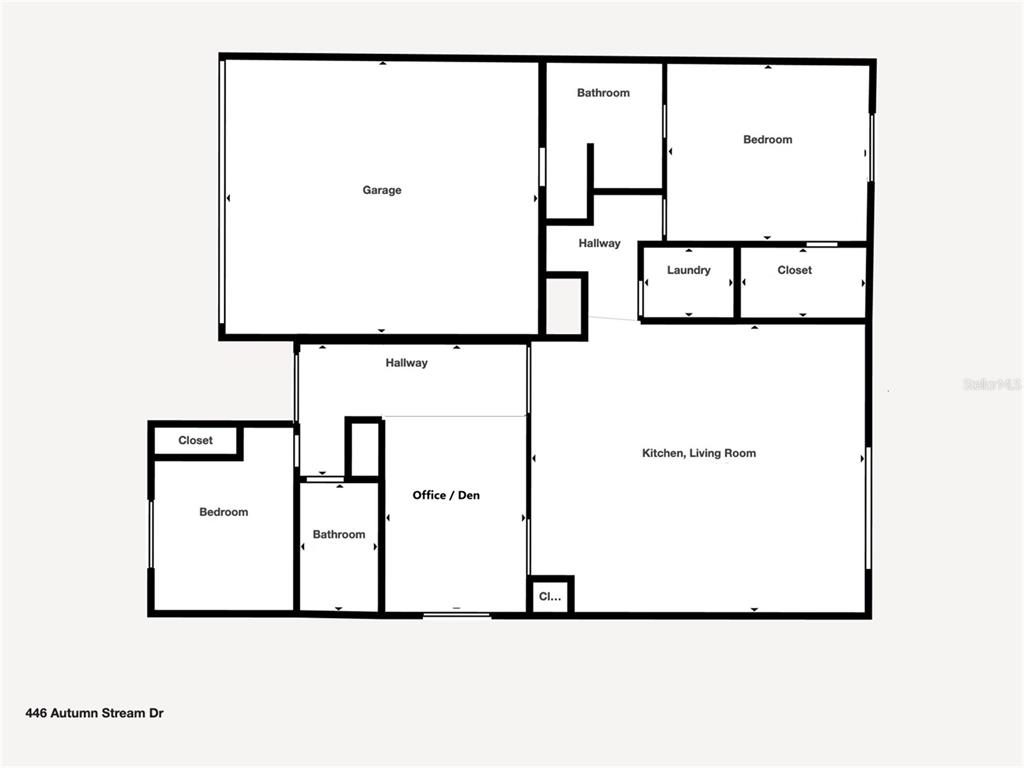
Square Feet
1530
Price Per Square Foot
$179.08
List Office Name
JC REALTY FLORIDA LLC
List Agent Full Name
Chunhong Xiao
Subdivision Name
WATERCREST ESTATES

Interior Information

Appliances
Dishwasher, Dryer, Microwave, Range, Refrigerator, Solar Hot Water, Solar Hot Water Owned, Washer
Bedrooms
2
Bathrooms
2
Bathrooms Full
2
Cooling
Central Air
Flooring
Carpet, Tile
Heating
Central
Interior Features
Ceiling Fan(s), Primary Bedroom Main Floor
Pet Restrictions
Please contact HOA and do your own due diligence regarding pet restrictions
Utilities
Public, Solar

Exterior Information

PropertySubType
Single Family Residence
Construction Materials
Concrete, Stucco
Exterior Features
Irrigation System, Sidewalk, Sliding Doors
Foundation Details
Slab
Lot Size Acres
0.14
Lot Size Square Feet
6007
Roof
Shingle

Additional Information

Community Features
Pool
Country
US
County / Parish
Polk
Postal Code
33823
Street Name
AUTUMN STREAM
Street Number
446
Street Suffix
DRIVE
Tax Year
2024
Total Acreage
0 to less than 1/4
Year Built
2020

Financial and Legal Information

Association Fee Frequency
Quarterly
Association Fee Requirement
Required
Association Fee
214
Cumulative Days On Market
8
Days On Market
8
Flood Zone Code
X
Flood Zone Date
December 12, 2016
Flood Zone Panel
12105C0335G
List Price
$274000.00
Listing Contract Date
October 10, 2025
Monthly HOA Amount
71.33
Original List Price
274000
Parcel Number
252725300602001970
Pets Allowed
Yes
Special Listing Conditions
None
Tax Annual Amount
2274.56
Tax Book Number
169-25-29
Tax Lot
197
Tax Legal Description
WATERCREST ESTATES PHASE 2 PB 169 PG 25-29 LOT 197

Learn More About This Property

CAPTCHA
"