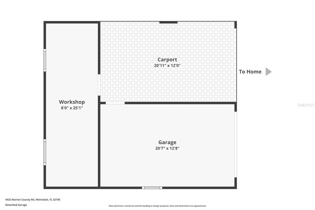
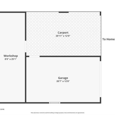
4432 MARION COUNTY
Basic Information
List Status
Active
Property Type
Residential
Address
4432 MARION COUNTY
WEIRSDALE, FL 32195
United States
Current Price
$580,000.00
Square Feet
2556
Price Per Square Foot
$226.92
List Office Name
OLYMPUS EXECUTIVE REALTY INC
List Agent Full Name
Bryan Nelson
Subdivision Name
ACREAGE & UNREC
Interior Information
Appliances
Cooktop, Dishwasher, Microwave, Refrigerator
Bedrooms
4
Bathrooms
4
Bathrooms Full
3
Bathrooms Half
1
Cooling
Central Air
Flooring
Ceramic Tile
Heating
Electric
Interior Features
Eating Space In Kitchen, Kitchen/Family Room Combo, Open Floorplan, Primary Bedroom Main Floor, Solid Surface Counters, Solid Wood Cabinets, Split Bedroom, Stone Counters, Walk-In Closet(s)
Pet Restrictions
Buyer/Buyer's Agent to confirm all pet restrictions with local government.
Utilities
Electricity Connected
Exterior Information
PropertySubType
Single Family Residence
Construction Materials
Block, Stucco
Exterior Features
Other, Storage
Foundation Details
Slab
Lot Size Acres
2.27
Lot Size Square Feet
98881
Lot Features
Farm, Gentle Sloping, Pasture, Private, Rolling Slope, Zoned for Horses
Roof
Shingle
Additional Information
Country
US
County / Parish
Lake
Postal Code
32195
Street Name
MARION COUNTY
Street Number
4432
Street Suffix
ROAD
Tax Year
2024
Total Acreage
2 to less than 5
Year Built
1978
Financial and Legal Information
Cumulative Days On Market
45
Days On Market
45
Flood Zone Code
X
Flood Zone Date
December 12, 2012
Flood Zone Panel
12069C0160E
List Price
$580000.00
Listing Contract Date
November 11, 2025
Original List Price
580000
Parcel Number
021824000300002501
Pets Allowed
Yes
Special Listing Conditions
None
Tax Annual Amount
3404
Tax Book Number
00
Tax Lot
00
Zoning
R-1
Tax Legal Description
FROM NE COR OF SW 1/4 RUN N 89-55-0 W 64 FT S 0-44-50 E 33 FT TO S R/W LINE OF MARION COUNTY RD FOR POB CONT S 0-44-50 E 230.97 FT N 89-55-0 W 428.21 FT N 0-44-50 W 230.97 FT S 89-55-0 E 428.21 FT TO POB ORB 4924 PG 205