4272 LA SALLE

Basic Information

List Status
Active
Property Type
Residential
Last Updated
MLS Listing Updated
Created
Address

4272 LA SALLE
ST CLOUD, FL 34772
United States

Current Price
$744,999.00
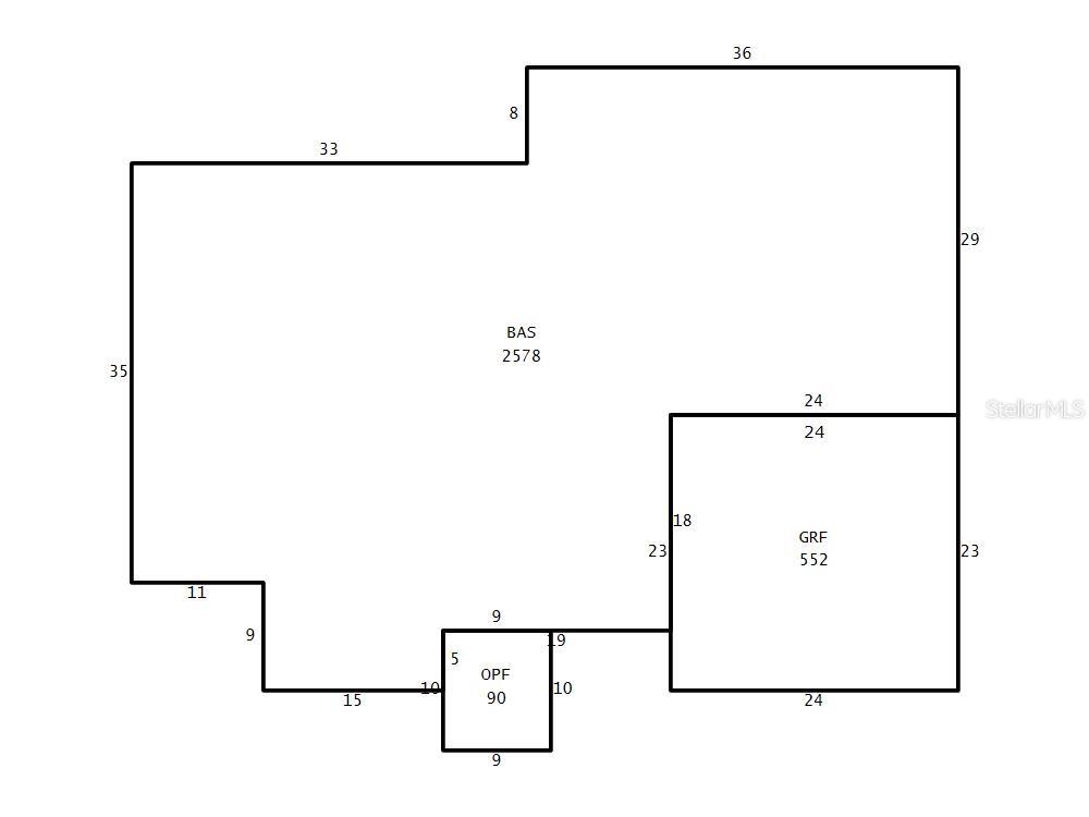
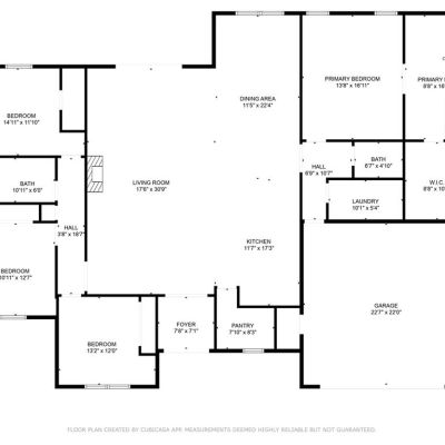
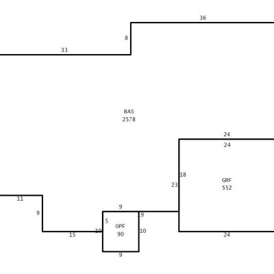
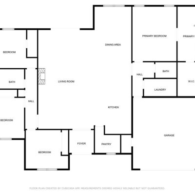
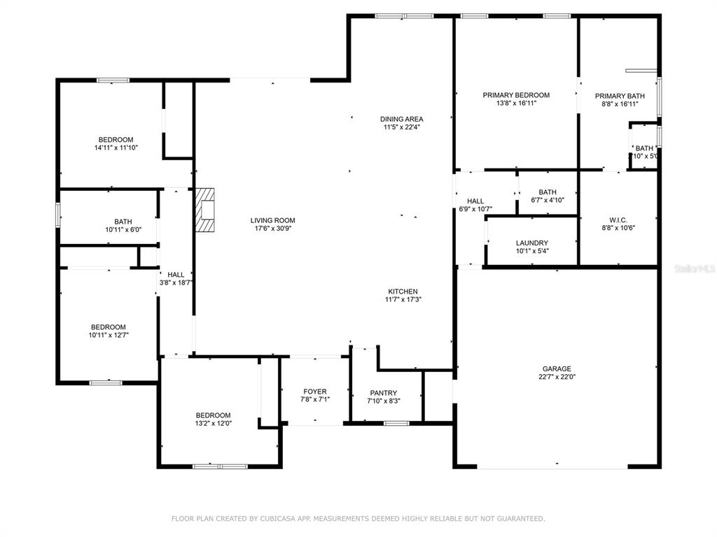
Square Feet
2582
Price Per Square Foot
$288.54
List Office Name
WATSON REALTY CORP
List Agent Full Name
Whitney Curcio
Subdivision Name
S L & I C

Interior Information

Appliances
Built-In Oven, Convection Oven, Cooktop, Dishwasher, Disposal, Electric Water Heater, Microwave, Range, Refrigerator, Water Softener
Bedrooms
4
Bathrooms
3
Bathrooms Full
2
Bathrooms Half
1
Cooling
Central Air
Flooring
Carpet, Engineered Hardwood
Heating
Heat Pump
Interior Features
Built-in Features, Ceiling Fan(s), High Ceilings, Open Floorplan, Solid Surface Counters, Split Bedroom, Stone Counters, Thermostat, Tray Ceiling(s), Walk-In Closet(s)
Utilities
BB/HS Internet Available, Cable Available, Cable Connected, Electricity Connected, Phone Available

Exterior Information

PropertySubType
Single Family Residence
Construction Materials
Block
Exterior Features
French Doors, Rain Gutters, Sliding Doors
Foundation Details
Slab
Lot Size Acres
1.54
Lot Size Square Feet
67082
Lot Features
In County, Oversized Lot
Roof
Shingle

Additional Information

Country
US
County / Parish
Osceola
Postal Code
34772
Street Name
LA SALLE
Street Number
4272
Street Suffix
AVENUE
Tax Year
2024
Total Acreage
1 to less than 2
Year Built
2023

Financial and Legal Information

Cumulative Days On Market
109
Days On Market
109
Flood Zone Code
X
List Price
$744999.00
Listing Contract Date
August 8, 2025
Original List Price
749999
Parcel Number
062731495000010894
Special Listing Conditions
None
Tax Annual Amount
631.16
Tax Book Number
B-32
Tax Lot
89
Zoning
LDR
Tax Legal Description
S L & I C PB B PG 32 S 110.02 FT OF N 220.04 FT OF LOT 89 LESS W 5 FT FOR R/W

Learn More About This Property

CAPTCHA
"