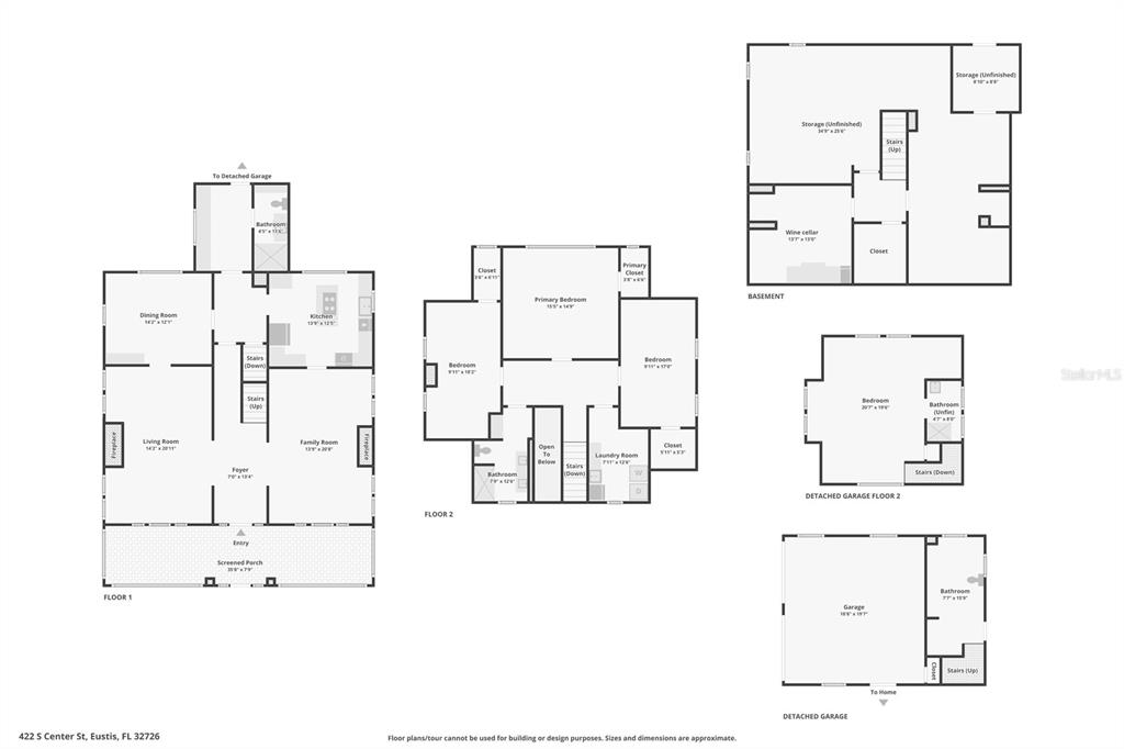
422 CENTER

Basic Information

List Status
Active
Property Type
Residential
Last Updated
MLS Listing Updated
Created
Address

422 CENTER
EUSTIS, FL 32726
United States

Current Price
$550,000.00
Square Feet
2668
Price Per Square Foot
$206.15
List Office Name
COLDWELL BANKER VANGUARD EDGE
List Agent Full Name
Robin Skaggs
Subdivision Name
EUSTIS

Interior Information

Appliances
Cooktop, Dishwasher, Disposal, Dryer, Refrigerator, Washer
Bedrooms
3
Bathrooms
2
Bathrooms Full
2
Cooling
Central Air
Flooring
Tile, Hardwood
Heating
Electric, Natural Gas
Interior Features
Ceiling Fan(s), Chair Rail, Crown Molding, Eating Space In Kitchen, High Ceilings, Solid Surface Counters, Stone Counters, Walk-In Closet(s)
Utilities
BB/HS Internet Available, Electricity Connected, Natural Gas Connected, Public, Water Connected

Exterior Information

PropertySubType
Single Family Residence
Construction Materials
Brick, Wood Frame, Wood Siding
Exterior Features
Private Entrance, Private Mailbox, Sidewalk
Foundation Details
Basement, Block
Lot Size Acres
0.53
Lot Size Square Feet
22960
Lot Features
Corner Lot, Historic District, City Lot, Landscaped, Level, Near Public Transit, Oversized Lot, Sidewalk
Roof
Shingle

Additional Information

Country
US
County / Parish
Lake
Postal Code
32726
Street Name
CENTER
Street Number
422
Street Suffix
STREET
Tax Year
2025
Total Acreage
1/2 to less than 1
Year Built
1908

Financial and Legal Information

Cumulative Days On Market
1
Days On Market
1
Flood Zone Code
X
Flood Zone Date
December 12, 2012
Flood Zone Panel
12069C0356E
List Price
$550000.00
Listing Contract Date
March 3, 2026
Original List Price
550000
Parcel Number
111926010008600013
Special Listing Conditions
None
Tax Annual Amount
3023
Tax Book Number
1-79
Zoning
SR
Tax Legal Description
EUSTIS BEG AT A POINT ON N LINE OF KEY AVE & W LINE OF CENTER STREET SAME BEING SE COR OF BLK 86 RUN N 80 FT W 287 FT S 80 FT TO N LINE OF KEY AVE E 287 FT TO POB BEING PART OF BLK 86 PB 1 PG 79 ORB 4445 PG 2064 ORB 4501 PG 2441

Learn More About This Property

CAPTCHA
"