40610 BABB

Basic Information

List Status
Active
Property Type
Residential
Last Updated
MLS Listing Updated
Created
Address

40610 BABB
UMATILLA, FL 32784
United States

Current Price
$850,000.00
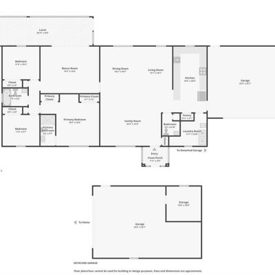
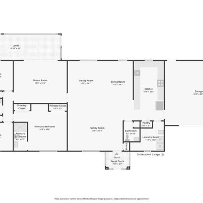
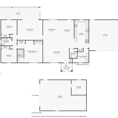
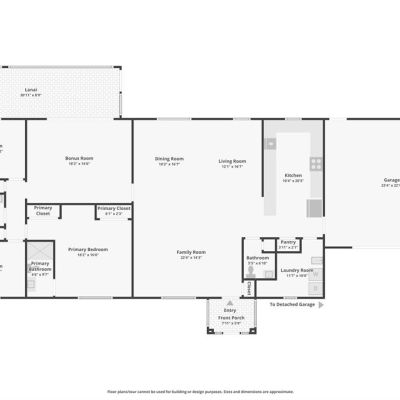
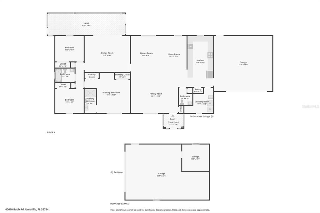
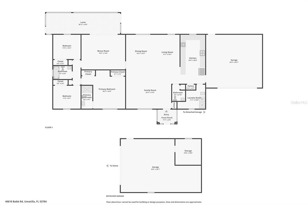
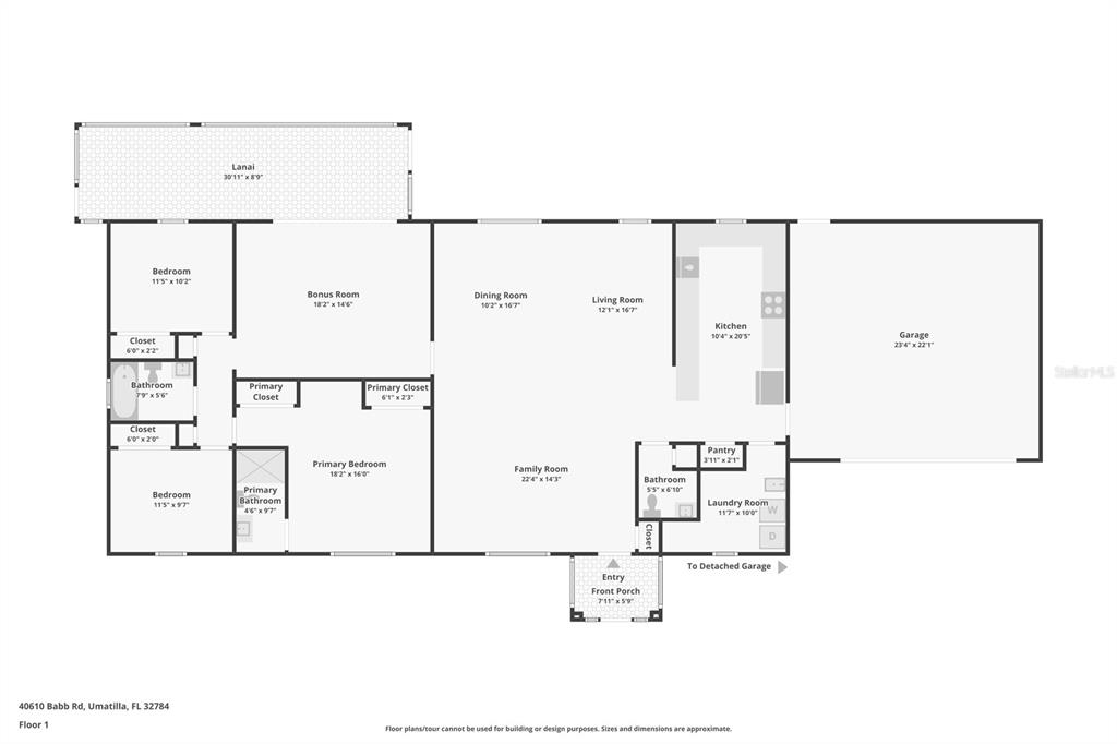
Square Feet
2048
Price Per Square Foot
$415.04
List Office Name
ENGINE REALTY INC
List Agent Full Name
Jennifer Jordan
Subdivision Name
NONE

Interior Information

Appliances
Dishwasher, Range, Water Softener
Bedrooms
3
Bathrooms
3
Bathrooms Full
2
Bathrooms Half
1
Cooling
Central Air
Flooring
Laminate, Tile
Heating
Central
Interior Features
Cathedral Ceiling(s), High Ceilings, Living Room/Dining Room Combo, Vaulted Ceiling(s)
Utilities
Cable Connected, Electricity Connected, Sewer Connected, Sprinkler Well

Exterior Information

PropertySubType
Single Family Residence
Construction Materials
Stucco
Exterior Features
Balcony, Irrigation System, Sliding Doors
Foundation Details
Slab
Lot Size Acres
8.51
Lot Size Square Feet
370696
Roof
Shingle

Additional Information

Country
US
County / Parish
Lake
Postal Code
32784
Street Name
BABB
Street Number
40610
Street Suffix
ROAD
Tax Year
2024
Total Acreage
5 to less than 10
Year Built
2015

Financial and Legal Information

Cumulative Days On Market
336
Days On Market
336
Flood Zone Code
X
List Price
$850000.00
Listing Contract Date
March 3, 2025
Original List Price
975000
Parcel Number
111826000200008400
Special Listing Conditions
None
Tax Annual Amount
2643.57
Tax Book Number
13-25
Tax Lot
18
Zoning
A
Tax Legal Description
FROM THE NORTHWEST CORNER OF LOT 18 OF LAKENRIDGE SUB PB 13 PG 25 RUN SOUTH 00-13-31 EAST ALONG THE WEST BOUNDARY OF SAID PLAT A DISTANCE OF 170.55 FEET FOR THE POINT OF BEGINNING CONTINUE SOUTH 00-13-31 EAST ALONG SAID WEST BOUNDARY OF PLAT 254.45 FEET SOUTH 76-06-29 WEST 150 FEET SOUTH 09-51-29 WEST 319.46 FEET TO THE SOUTH LINE OF THE NORTH 1320 FEET OF SAID SOUTHEAST 1/4 OF THE NORTHWEST 1/4 SOUTH 89-49-18 EAST 171.36 FEET TO THE EAST LINE OF THE WEST 726 FEET OF THE SOUTHEAST 1/4 OF THE NORTHWEST 1/4 SOUTH 00-25-20 EAST 15.05 FEET TO THE SOUTH LINE OF THE SOUTHEAST 1/4 OF THE NORTHWEST 1/4 OF SAID SECTION 11 TOWNSHIP 18 SOUTH RANGE 26 NORTH 89-45-48 WEST 726.05 FEET TO THE WEST LINE OF SAID SOUTHEAST 1/4 OF THE NORTHWEST 1/4 OF SAID

Learn More About This Property

CAPTCHA
"