3904 WOODSFIELD
Basic Information
List Status
Active
Property Type
Residential
Address
3904 WOODSFIELD
ORLANDO, FL 32822
United States
Current Price
$620,000.00
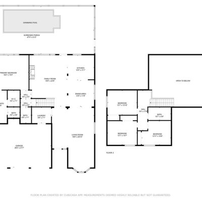
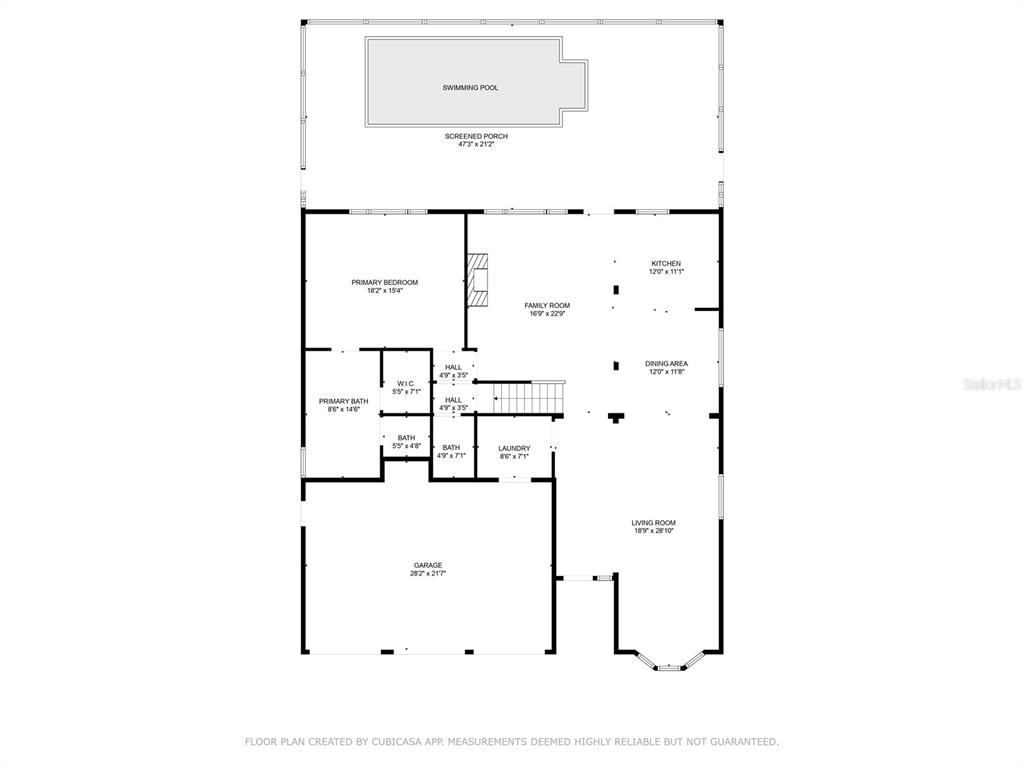
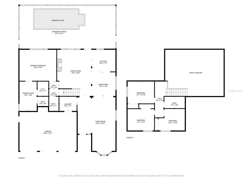
Square Feet
2580
Price Per Square Foot
$240.31
List Office Name
VESTI LLC
List Agent Full Name
Maribel Ramos, LLC
Subdivision Name
VENTURA PLACE
Interior Information
Appliances
Microwave, Range, Refrigerator
Bedrooms
4
Bathrooms
3
Bathrooms Full
2
Bathrooms Half
1
Cooling
Central Air
Flooring
Ceramic Tile, Laminate
Heating
Central, Electric
Interior Features
Cathedral Ceiling(s), Eating Space In Kitchen, Kitchen/Family Room Combo, Living Room/Dining Room Combo, Primary Bedroom Main Floor, Open Floorplan, Split Bedroom, Stone Counters, Walk-In Closet(s), Window Treatments
Pet Restrictions
Verify w/HOA
Utilities
Cable Available, Electricity Connected, Public, Street Lights, Underground Utilities, Water Connected
Exterior Information
PropertySubType
Single Family Residence
Construction Materials
Block, Stucco
Exterior Features
Irrigation System, Rain Gutters, Sidewalk
Foundation Details
Slab
Lot Size Acres
0.27
Lot Size Square Feet
11956
Lot Features
Corner Lot, Cul-De-Sac, Sidewalk
Roof
Tile
Additional Information
Community Features
Water Access, Deed Restrictions, Fitness Center, Golf Carts OK, Golf, Playground, Pool, Tennis Court(s)
Country
US
County / Parish
Orange
Postal Code
32822
Street Name
WOODSFIELD
Street Number
3904
Street Suffix
COURT
Tax Year
2024
Total Acreage
1/4 to less than 1/2
Year Built
1991
Financial and Legal Information
Association Fee Frequency
Monthly
Association Fee Includes
24-Hour Guard, Community Pool, Recreational Facilities
Association Fee Requirement
Required
Association Fee
198
Cumulative Days On Market
90
Days On Market
90
Flood Zone Code
X
List Price
$620000.00
Listing Contract Date
May 5, 2025
Monthly HOA Amount
198
Original List Price
635000
Parcel Number
102330887100130
Pets Allowed
Yes
Special Listing Conditions
None
Tax Annual Amount
5235
Tax Book Number
25-36
Tax Lot
13
Zoning
PD/AN
Tax Legal Description
VENTURA PLACE 25/36 LOT 13