3589 GRANDE TUSCANY

Basic Information

List Status
Active
Property Type
Residential
Last Updated
MLS Listing Updated
Created
Address

3589 GRANDE TUSCANY
NEW SMYRNA BEACH, FL 32168
United States

Current Price
$1,995,000.00
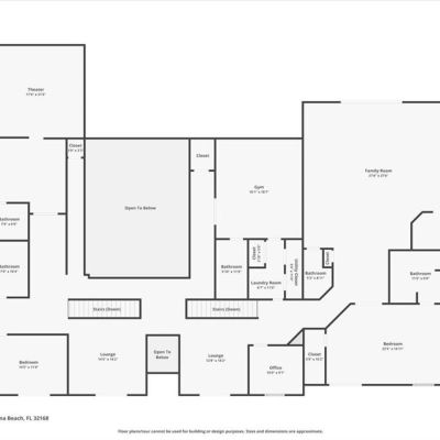
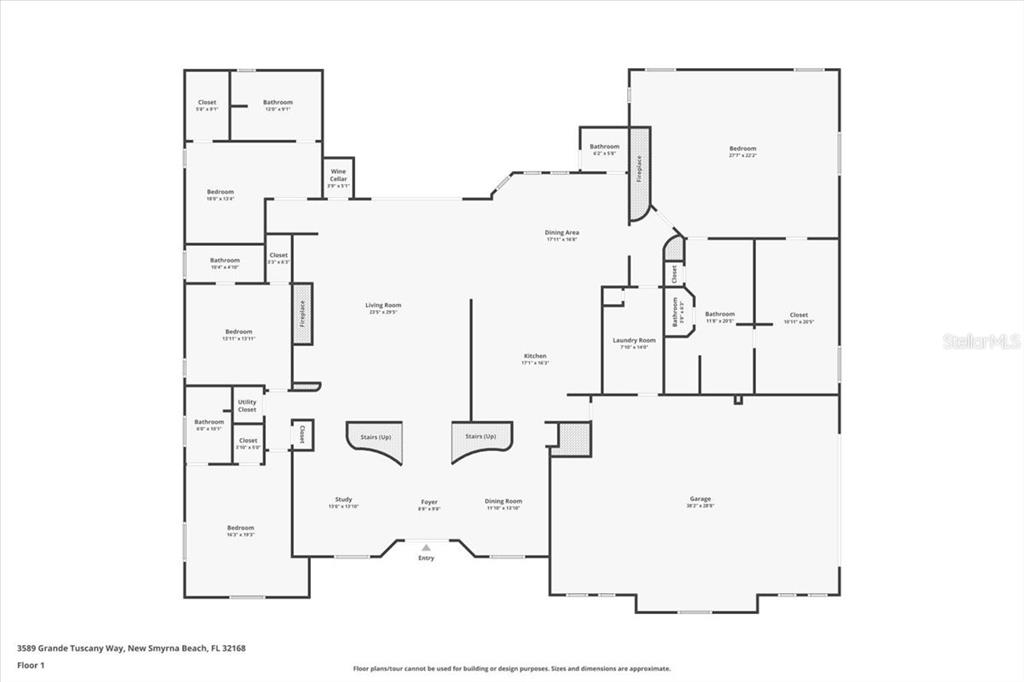
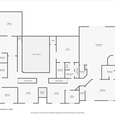
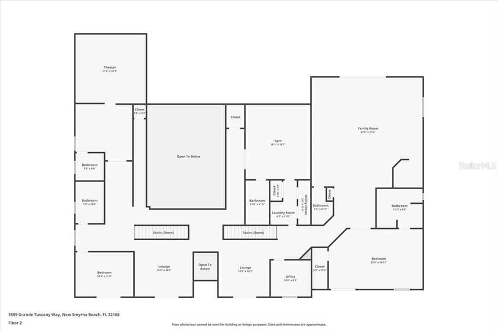
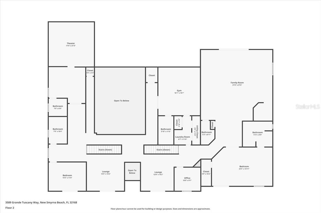
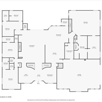
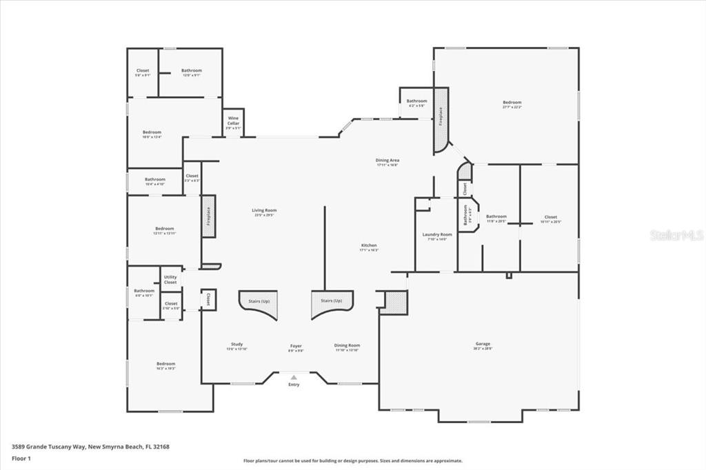
Square Feet
8260
Price Per Square Foot
$241.53
List Office Name
COLLADO REAL ESTATE
List Agent Full Name
Scott Yurchison
Subdivision Name
VENETIAN BAY PH 01A

Interior Information

Appliances
Bar Fridge, Built-In Oven, Cooktop, Dishwasher, Disposal, Dryer, Exhaust Fan, Freezer, Gas Water Heater, Microwave, Range, Range Hood, Refrigerator, Washer, Water Filtration System, Wine Refrigerator
Bedrooms
6
Bathrooms
10
Bathrooms Full
7
Bathrooms Half
3
Cooling
Central Air, Zoned
Flooring
Carpet, Ceramic Tile, Hardwood
Heating
Natural Gas
Interior Features
Built-in Features, Ceiling Fan(s), Central Vacuum, Coffered Ceiling(s), Crown Molding, Eating Space In Kitchen, High Ceilings, L Dining, Open Floorplan, Primary Bedroom Main Floor, Skylight(s), Solid Wood Cabinets, Split Bedroom, Stone Counters, Thermostat, Vaulted Ceiling(s), Walk-In Closet(s), Wet Bar, Window Treatments
Utilities
BB/HS Internet Available, Cable Connected, Electricity Connected, Propane, Public, Sewer Connected

Exterior Information

PropertySubType
Single Family Residence
Construction Materials
Block, Stucco
Exterior Features
Balcony, French Doors, Hurricane Shutters, Irrigation System, Outdoor Grill, Outdoor Kitchen, Outdoor Shower, Sidewalk
Foundation Details
Concrete Perimeter
Lot Size Acres
0.55
Lot Size Square Feet
23760
Lot Features
Cul-De-Sac, Landscaped, Near Golf Course, Oversized Lot, Sidewalk
Roof
Tile

Additional Information

Community Features
Clubhouse, Community Mailbox, Deed Restrictions, Gated Community - No Guard, Golf Carts OK, Golf, Park, Pool, Restaurant, Sidewalks
Country
US
County / Parish
Volusia
Postal Code
32168
Street Name
GRANDE TUSCANY
Street Number
3589
Street Suffix
WAY
Tax Year
2024
Total Acreage
1/2 to less than 1
Year Built
2005

Financial and Legal Information

Association Fee Frequency
Annually
Association Fee Includes
Maintenance Grounds, Recreational Facilities
Association Fee Requirement
Required
Association Fee
750
Cumulative Days On Market
64
Days On Market
64
Flood Zone Code
X
Flood Zone Date
February 2, 2014
Flood Zone Panel
12127C0516H
List Price
$1995000.00
Listing Contract Date
September 9, 2025
Monthly HOA Amount
62.5
Original List Price
2100000
Parcel Number
730606001540
Pets Allowed
Yes
Special Listing Conditions
None
Tax Annual Amount
26896
Tax Book Number
51-1-14
Tax Lot
154
Zoning
PUD
Tax Legal Description
LOT 154 & NW 35.62 FT AS MEAS ON GRANDE TUSCANY WAY LOT 153 VENETIAN BAY PHASE 1A MB 51 PGS 1-15 INC PER OR 5375 PG 2743 PER OR 5470 PG 3979 PER OR 5509 PG 4258 PER OR 5941 PGS 2570-2571 PER OR 6807 PG 4706

Learn More About This Property

CAPTCHA
"