351 FLORAL
Basic Information
List Status
Active
Property Type
Residential
Address
351 FLORAL
WINTER GARDEN, FL 34787
United States
Current Price
$689,000.00
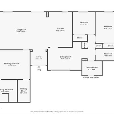
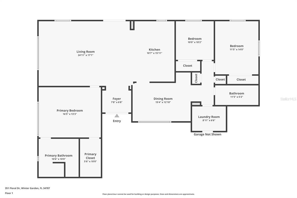
Square Feet
1722
Price Per Square Foot
$400.12
List Office Name
COLDWELL BANKER RESIDENTIAL RE
List Agent Full Name
Jared Lippelgoos
Subdivision Name
WESTLAKE MANOR 1ST ADD
Interior Information
Appliances
Built-In Oven, Convection Oven, Cooktop, Dishwasher, Exhaust Fan, Range Hood, Refrigerator, Wine Refrigerator
Bedrooms
3
Bathrooms
2
Bathrooms Full
2
Cooling
Central Air
Flooring
Ceramic Tile
Heating
Central, Electric
Interior Features
Built-in Features, Eating Space In Kitchen, Kitchen/Family Room Combo, Open Floorplan, Primary Bedroom Main Floor, Smart Home, Solid Surface Counters, Split Bedroom, Walk-In Closet(s), Window Treatments
Utilities
Cable Available, Electricity Connected, Public, Underground Utilities, Water Connected
Exterior Information
PropertySubType
Single Family Residence
Construction Materials
Block, Brick, Stucco
Exterior Features
Irrigation System, Lighting
Foundation Details
Slab
Lot Size Acres
0.29
Lot Size Square Feet
12785
Lot Features
Corner Lot, Historic District
Roof
Shingle
Additional Information
Country
US
County / Parish
Orange
Postal Code
34787
Street Name
FLORAL
Street Number
351
Street Suffix
DRIVE
Tax Year
2025
Total Acreage
1/4 to less than 1/2
Year Built
1980
Financial and Legal Information
Cumulative Days On Market
28
Days On Market
28
Flood Zone Code
X
List Price
$689000.00
Listing Contract Date
September 9, 2025
Original List Price
705000
Parcel Number
142227920303060
Special Listing Conditions
None
Tax Annual Amount
7143.79
Tax Book Number
Z-10
Tax Lot
6
Zoning
R-1
Tax Legal Description
WESTLAKE MANOR 1ST ADDITION Z/10 LOT 6 BLK C