3430 TURNINGWIND

Basic Information

List Status
Active
Property Type
Residential
Last Updated
MLS Listing Updated
Created
Address

3430 TURNINGWIND
WINTER GARDEN, FL 34787
United States

Current Price
$825,000.00
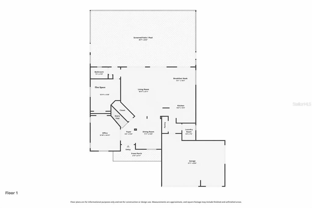
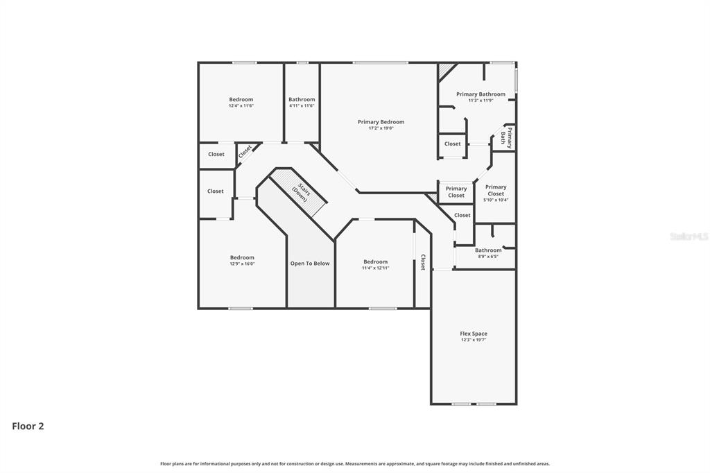
Square Feet
3358
Price Per Square Foot
$245.68
List Office Name
CENTURY 21 HANCOCK
List Agent Full Name
Lydia Wells
Subdivision Name
WINDWARD CAY 48 125

Interior Information

Appliances
Dishwasher, Electric Water Heater, Microwave, Range, Refrigerator
Bedrooms
4
Bathrooms
4
Bathrooms Full
4
Cooling
Central Air
Flooring
Porcelain Tile, Hardwood
Heating
Central, Electric
Interior Features
Ceiling Fan(s), Crown Molding, Eating Space In Kitchen, High Ceilings, Kitchen/Family Room Combo, Open Floorplan, PrimaryBedroom Upstairs, Stone Counters, Thermostat, Walk-In Closet(s)
Pet Restrictions
Please confirm with HOA
Utilities
BB/HS Internet Available, Cable Available, Electricity Connected, Sewer Connected

Exterior Information

PropertySubType
Single Family Residence
Construction Materials
Block, Stucco, Wood Frame
Exterior Features
Irrigation System, Sliding Doors
Foundation Details
Slab
Lot Size Acres
0.28
Lot Size Square Feet
12102
Lot Features
Conservation Area, Sidewalk
Roof
Shingle

Additional Information

Community Features
Deed Restrictions, Sidewalks
Country
US
County / Parish
Orange
Postal Code
34787
Street Name
TURNINGWIND
Street Number
3430
Street Suffix
LANE
Tax Year
2024
Total Acreage
1/4 to less than 1/2
Year Built
2002

Financial and Legal Information

Association Fee Frequency
Quarterly
Association Fee Includes
Escrow Reserves Fund, Private Road
Association Fee Requirement
Required
Association Fee
345
Cumulative Days On Market
1
Days On Market
1
Flood Zone Code
X/A
Flood Zone Date
September 9, 2021
Flood Zone Panel
12095C0215H
List Price
$825000.00
Listing Contract Date
April 4, 2026
Monthly HOA Amount
115
Original List Price
825000
Parcel Number
112327916700420
Pets Allowed
Yes
Special Listing Conditions
None
Tax Annual Amount
6000.65
Tax Book Number
48/125
Tax Lot
42
Zoning
R-1
Tax Legal Description
WINDWARD CAY 48/125 LOT 42

Learn More About This Property

CAPTCHA
"