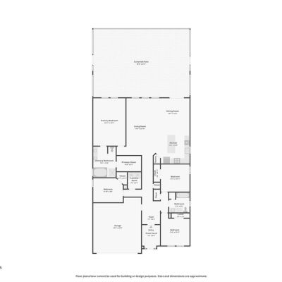
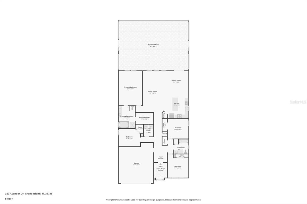
3207 ZANDER

Basic Information

List Status
Active
Property Type
Residential
Last Updated
MLS Listing Updated
Created
Address

3207 ZANDER
GRAND ISLAND, FL 32735
United States

Current Price
$399,000.00
Square Feet
2017
Price Per Square Foot
$197.82
List Office Name
COLDWELL BANKER VANGUARD EDGE
List Agent Full Name
Robin Skaggs
Subdivision Name
EUSTIS GRAND ISLAND RESERVE

Interior Information

Appliances
Dishwasher, Disposal, Dryer, Microwave, Range, Refrigerator
Bedrooms
4
Bathrooms
2
Bathrooms Full
2
Cooling
Central Air
Flooring
Carpet, Tile
Heating
Central, Electric
Interior Features
Ceiling Fan(s), Eating Space In Kitchen, High Ceilings, Kitchen/Family Room Combo, Open Floorplan, Primary Bedroom Main Floor, Solid Surface Counters, Solid Wood Cabinets, Walk-In Closet(s), Window Treatments
Utilities
Electricity Connected, Public

Exterior Information

PropertySubType
Single Family Residence
Construction Materials
Block, Stucco
Exterior Features
Irrigation System, Rain Gutters, Sidewalk, Sliding Doors
Foundation Details
Slab
Lot Size Acres
0.23
Lot Size Square Feet
10012
Lot Features
Corner Lot
Roof
Shingle

Additional Information

Community Features
Clubhouse, Community Mailbox, Playground, Pool
Country
US
County / Parish
Lake
Postal Code
32735
Street Name
ZANDER
Street Number
3207
Street Suffix
DRIVE
Tax Year
2024
Total Acreage
0 to less than 1/4
Year Built
2013

Financial and Legal Information

Association Fee Frequency
Monthly
Association Fee Requirement
Required
Association Fee
105
Cumulative Days On Market
149
Days On Market
149
Flood Zone Code
X
Flood Zone Date
December 12, 2012
Flood Zone Panel
12069C0215E
List Price
$399000.00
Listing Contract Date
August 8, 2025
Monthly HOA Amount
105
Original List Price
399000
Parcel Number
331826001000006300
Pets Allowed
Yes
Special Listing Conditions
None
Tax Book Number
60-26-31
Tax Lot
63
Zoning
SR
Tax Legal Description
GRAND ISLAND RESERVE PB 60 PG 26-31 LOT 63 ORB 6347 PG 750

Learn More About This Property

CAPTCHA
"