31770 ELKRIDGE

Basic Information

List Status
Active
Property Type
Residential
Last Updated
MLS Listing Updated
Created
Address

31770 ELKRIDGE
SORRENTO, FL 32776
United States

Current Price
$390,000.00
Square Feet
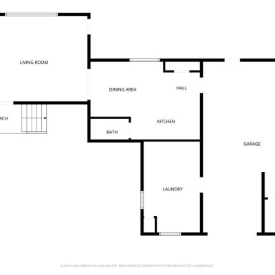
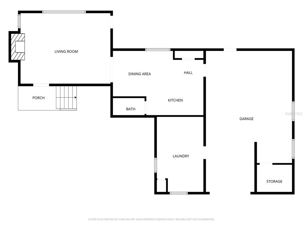
1940
Price Per Square Foot
$201.03
List Office Name
NXT LEVEL REALTY GROUP INC
List Agent Full Name
Dianellys Gradaille
Subdivision Name
MOUNT PLYMOUTH

Interior Information

Appliances
Convection Oven, Electric Water Heater, Microwave, Range, Refrigerator
Bedrooms
2
Bathrooms
2
Bathrooms Full
2
Cooling
Central Air, Wall/Window Unit(s)
Flooring
Carpet, Ceramic Tile, Concrete, Porcelain Tile
Heating
Electric, Wall Units / Window Unit
Interior Features
Ceiling Fan(s), High Ceilings, Open Floorplan, PrimaryBedroom Upstairs, Solid Wood Cabinets, Thermostat, Window Treatments
Utilities
Cable Available, Electricity Connected, Public, Sewer Connected, Sprinkler Well, Water Available

Exterior Information

PropertySubType
Single Family Residence
Construction Materials
Block, Concrete
Exterior Features
Garden, Private Entrance, Private Mailbox, Private Yard, Sidewalk
Foundation Details
Slab
Lot Size Acres
0.51
Lot Size Square Feet
20732
Lot Features
Corner Lot, Oversized Lot, Unincorporated
Roof
Concrete, Other

Additional Information

Country
US
County / Parish
Lake
Postal Code
32776
Street Name
ELKRIDGE
Street Number
31770
Street Suffix
DRIVE
Tax Year
2025
Total Acreage
1/2 to less than 1
Year Built
1950

Financial and Legal Information

Cumulative Days On Market
1
Days On Market
1
Flood Zone Code
AE*
Flood Zone Date
December 12, 2012
Flood Zone Panel
12069C0395E
List Price
$390000.00
Listing Contract Date
March 3, 2026
Original List Price
390000
Parcel Number
281928010000504800
Pets Allowed
Cats OK, Dogs OK
Special Listing Conditions
None
Tax Annual Amount
1498.95
Tax Book Number
8-85
Tax Lot
48
Zoning
R-6
Tax Legal Description
MT PLYMOUTH LOTS 48 49 50 BLK 5 PB 8 PG 85 ORB 3216 PG 772 ORB 3306 PG 1025

Learn More About This Property

CAPTCHA
"