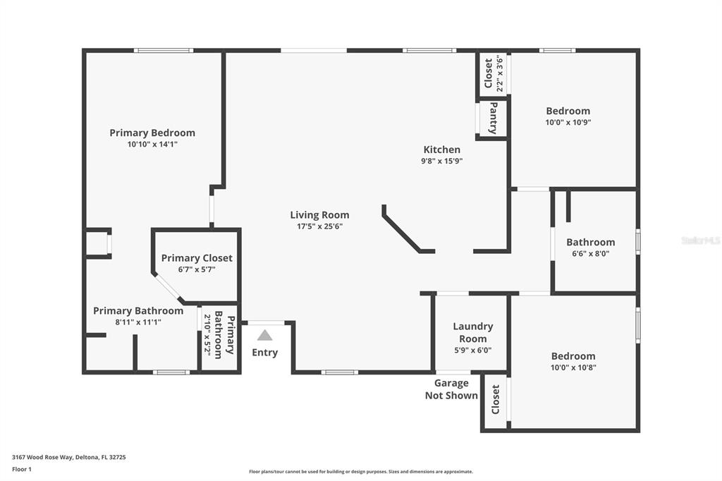
3042 WILD PEPPER
Basic Information
List Status
Active
Property Type
Residential
Address
3042 WILD PEPPER
DELTONA, FL 32725
United States
Current Price
$317,500.00
Square Feet
1282
Price Per Square Foot
$247.66
List Office Name
REAL BROKER, LLC
List Agent Full Name
Gretchen Carlson, PA
Subdivision Name
ARBOR RIDGE UNIT 03
Interior Information
Appliances
Dishwasher, Microwave, Range, Refrigerator
Bedrooms
3
Bathrooms
2
Bathrooms Full
2
Cooling
Central Air
Flooring
Carpet, Tile
Heating
Central
Interior Features
Open Floorplan, Primary Bedroom Main Floor, Split Bedroom
Utilities
Electricity Connected
Exterior Information
PropertySubType
Single Family Residence
Construction Materials
Stucco
Exterior Features
Sliding Doors
Foundation Details
Slab
Lot Size Acres
0.16
Lot Size Square Feet
7080
Lot Features
Sidewalk
Roof
Shingle
Additional Information
Community Features
Deed Restrictions, Playground, Pool, Sidewalks, Tennis Court(s)
Country
US
County / Parish
Volusia
Postal Code
32725
Street Name
WILD PEPPER
Street Number
3042
Street Suffix
AVENUE
Tax Year
2024
Total Acreage
0 to less than 1/4
Year Built
2005
Financial and Legal Information
Association Fee Frequency
Semi-Annually
Association Fee Requirement
Required
Association Fee
185
Cumulative Days On Market
9
Days On Market
9
Flood Zone Code
X
Flood Zone Date
September 9, 2017
Flood Zone Panel
12127C0630K
List Price
$317500.00
Listing Contract Date
October 10, 2025
Monthly HOA Amount
30.83
Original List Price
317500
Parcel Number
810523002130
Pets Allowed
No
Special Listing Conditions
None
Tax Annual Amount
4846
Tax Book Number
50-159-16
Tax Lot
213
Zoning
R-1
Tax Legal Description
LOT 213 ARBOR RIDGE UNIT 3 MB 50 PGS 159-161 INC PER OR 5742 PG 2749