3039 CHICAGO

Basic Information

List Status
Active
Property Type
Residential
Last Updated
MLS Listing Updated
Created
Address

3039 CHICAGO
HAINES CITY, FL 33844
United States

Current Price
$345,690.00
Square Feet
1814
Price Per Square Foot
$190.57
List Office Name
DRB GROUP REALTY, LLC
List Agent Full Name
Adam Schott
Subdivision Name
HAMILTON BLUFF SUBDIVISION PHASES 1 & 2

Interior Information

Appliances
Dishwasher, Disposal, Electric Water Heater, Microwave, Range
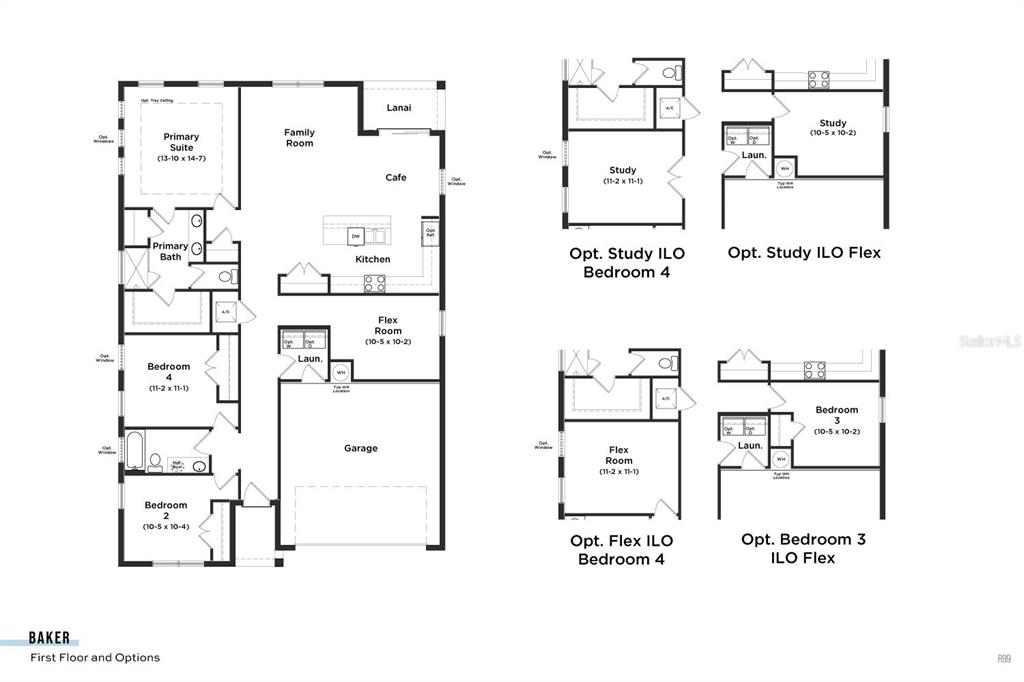
Bedrooms
3
Bathrooms
2
Bathrooms Full
2
Cooling
Central Air
Flooring
Carpet, Tile
Heating
Central, Electric
Interior Features
High Ceilings, Primary Bedroom Main Floor, Smart Home, Tray Ceiling(s), Walk-In Closet(s)
Utilities
BB/HS Internet Available, Electricity Connected, Public, Sewer Connected, Underground Utilities, Water Connected

Exterior Information

PropertySubType
Single Family Residence
Construction Materials
Concrete, Stucco
Exterior Features
Garden, Irrigation System, Lighting, Sidewalk, Sliding Doors, Sprinkler Metered
Foundation Details
Slab
Lot Size Acres
0.14
Lot Size Square Feet
6098
Lot Features
In County, Landscaped, Level, Sidewalk
Roof
Shingle

Additional Information

Community Features
Clubhouse, Community Mailbox, Dog Park, Irrigation-Reclaimed Water, Playground, Pool, Sidewalks
Country
US
County / Parish
Polk
Postal Code
33844
Street Name
CHICAGO
Street Number
3039
Street Suffix
AVENUE
Tax Year
2024
Total Acreage
0 to less than 1/4
Year Built
2025

Financial and Legal Information

Association Fee Frequency
Monthly
Association Fee Includes
Common Area Taxes, Community Pool, Escrow Reserves Fund, Internet, Private Road
Association Fee Requirement
Required
Association Fee
47.71
Flood Zone Code
X
List Price
$345690.00
Listing Contract Date
October 10, 2025
Monthly HOA Amount
47.71
Original List Price
345690
Parcel Number
272815822502035090
Pets Allowed
Dogs OK, Yes
Special Listing Conditions
None
Tax Book Number
209/19-38
Tax Lot
9
Zoning
RES
Tax Legal Description
HAMILTON BLUFF SUBDIVISION PHASES 1 & 2 PB 209 PGS 19-38 BLOCK 35 LOT 9

Learn More About This Property

CAPTCHA
"