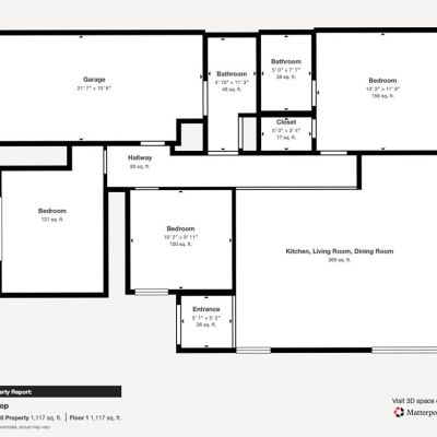
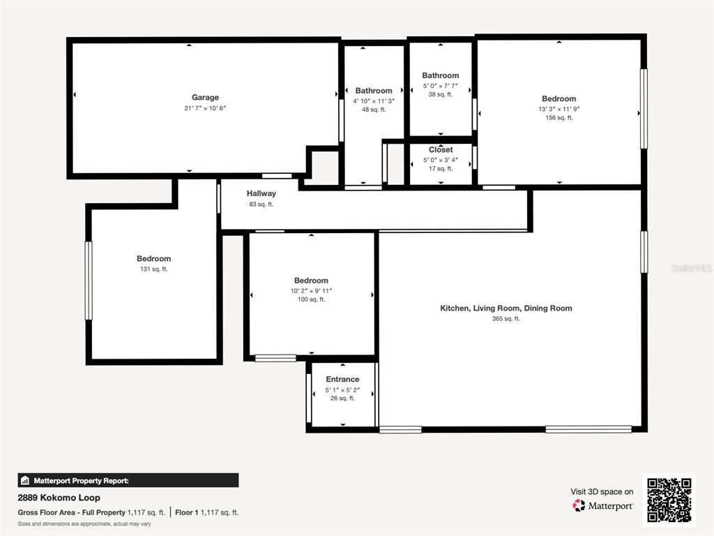
2889 KOKOMO LOOP

Basic Information

List Status
Active
Property Type
Residential
Last Updated
MLS Listing Updated
Created
Address

2889 KOKOMO LOOP
HAINES CITY, FL 33844
United States

Current Price
$310,000.00
Square Feet
1130
Price Per Square Foot
$274.34
List Office Name
IONA BROKERAGE LLC
List Agent Full Name
Jason Smith
Subdivision Name
KOKOMO BAY PH 02

Interior Information

Appliances
Dishwasher, Dryer, Gas Water Heater, Microwave, Range, Refrigerator, Washer
Bedrooms
3
Bathrooms
2
Bathrooms Full
2
Cooling
Central Air
Flooring
Carpet, Ceramic Tile
Heating
Central, Electric
Interior Features
Ceiling Fan(s), Kitchen/Family Room Combo, Walk-In Closet(s)
Pet Restrictions
Please refer to HOA Documents
Utilities
Cable Connected, Electricity Connected, Public, Street Lights, Water Connected

Exterior Information

PropertySubType
Single Family Residence
Construction Materials
Stucco
Exterior Features
Irrigation System, Sidewalk, Sliding Doors
Foundation Details
Slab
Lot Size Acres
0.10
Lot Size Square Feet
4343
Lot Features
Near Golf Course
Roof
Shingle

Additional Information

Community Features
Clubhouse, Deed Restrictions, Gated Community - Guard, Golf Carts OK, Golf, Playground, Pool, Restaurant, Tennis Court(s)
Country
US
County / Parish
Polk
Postal Code
33844
Street Name
KOKOMO LOOP
Street Number
2889
Tax Year
2025
Total Acreage
0 to less than 1/4
Year Built
2004

Financial and Legal Information

Association Fee Frequency
Quarterly
Association Fee Includes
24-Hour Guard, Community Pool
Association Fee Requirement
Required
Association Fee
211.56
Cumulative Days On Market
1
Days On Market
1
Flood Zone Code
X
Flood Zone Date
December 12, 2016
Flood Zone Panel
12105C0219G
List Price
$310000.00
Listing Contract Date
November 11, 2025
Monthly HOA Amount
70.52
Original List Price
310000
Parcel Number
272717741005001470
Pets Allowed
Yes
Special Listing Conditions
None
Tax Annual Amount
4607
Tax Book Number
122-3
Tax Lot
147
Zoning
SFR
Tax Legal Description
KOKOMO BAY PHASE TWO PB 122 PGS 3 & 4 LOT 147

Learn More About This Property

CAPTCHA
"