279 MAIN
Basic Information
List Status
Active
Property Type
Residential
Address
279 MAIN
LAKE MARY, FL 32746
United States
Current Price
$730,000.00
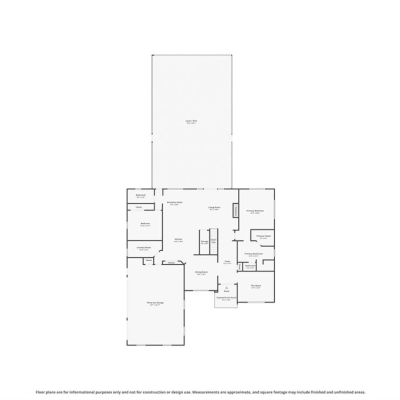
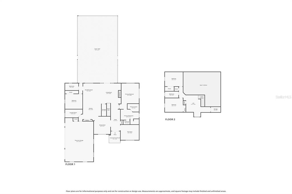
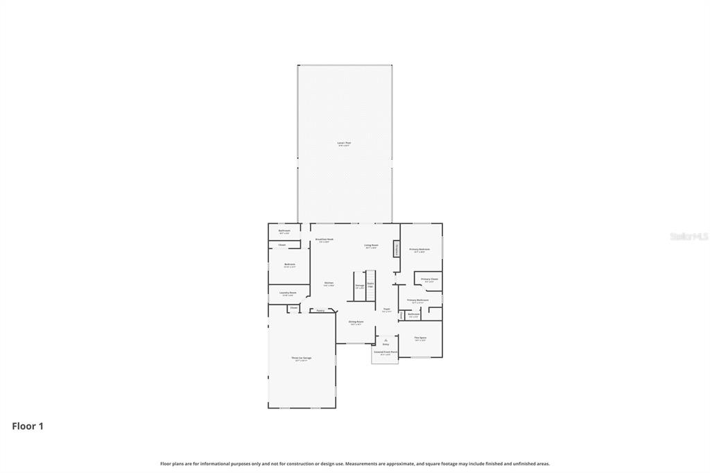
Square Feet
2897
Price Per Square Foot
$251.98
List Office Name
GLOBAL REALTY OF VOLUSIA
List Agent Full Name
Jen Di Lorenzo Arnold
Subdivision Name
SANFORDS SUBSTANTIAL FARMS
Interior Information
Appliances
Convection Oven, Dishwasher, Disposal, Dryer, Electric Water Heater, Range, Refrigerator, Washer
Bedrooms
4
Bathrooms
3
Bathrooms Full
3
Cooling
Central Air
Flooring
Carpet, Laminate, Tile, Hardwood
Heating
Central, Electric
Interior Features
Built-in Features, Ceiling Fan(s), Chair Rail, Crown Molding, Eating Space In Kitchen, High Ceilings, Open Floorplan, Primary Bedroom Main Floor, Solid Surface Counters, Solid Wood Cabinets, Split Bedroom, Stone Counters, Thermostat, Walk-In Closet(s), Window Treatments
Utilities
Cable Available, Electricity Available, Electricity Connected, Public, Street Lights, Water Available, Water Connected
Exterior Information
PropertySubType
Single Family Residence
Construction Materials
Block, Wood Frame, Wood Siding
Exterior Features
French Doors, Irrigation System, Lighting, Playground, Private Yard, Rain Gutters, Sidewalk, Sprinkler Metered
Foundation Details
Slab
Lot Size Acres
0.41
Lot Size Square Feet
18014
Lot Features
Cleared, City Lot, Landscaped, Level, Near Public Transit, Sidewalk
Roof
Shingle
Additional Information
Community Features
Sidewalks
Country
US
County / Parish
Seminole
Postal Code
32746
Street Name
MAIN
Street Number
279
Street Suffix
ROAD
Tax Year
2024
Total Acreage
1/4 to less than 1/2
Year Built
2000
Financial and Legal Information
Flood Zone Code
X
Flood Zone Date
September 9, 2007
Flood Zone Panel
12117C0155F
List Price
$730000.00
Listing Contract Date
April 4, 2026
Original List Price
730000
Parcel Number
1520305AO0000031E
Special Listing Conditions
None
Tax Annual Amount
4966.39
Tax Book Number
5-83
Tax Lot
31
Zoning
R-1AA
Tax Legal Description
N 200 FT OF LOT 31 (LESS E 214 FT) SANFORDS SUBSTANTIAL FARMS PB 5 PG 83