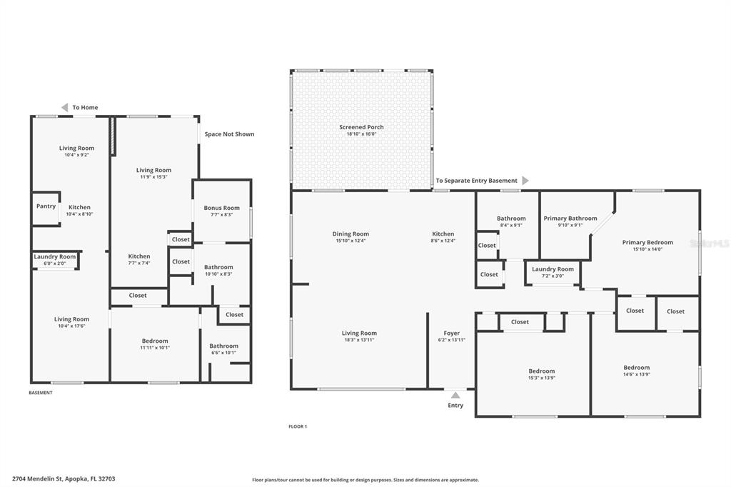
2704 MENDELIN

Basic Information

List Status
Active
Property Type
Residential
Last Updated
MLS Listing Updated
Created
Address

2704 MENDELIN
APOPKA, FL 32703
United States

Current Price
$545,000.00
Square Feet
2700
Price Per Square Foot
$201.85
List Office Name
AK PROPERTY BROKERS INC
List Agent Full Name
Raj Kataria
Subdivision Name
LAKE MENDELIN ESTATES

Interior Information

Appliances
Dishwasher, Disposal, Dryer, Electric Water Heater, Microwave, Range, Range Hood, Washer, Water Filtration System, Water Softener
Bedrooms
4
Bathrooms
3
Bathrooms Full
3
Cooling
Central Air
Flooring
Carpet, Ceramic Tile, Marble, Hardwood
Heating
Central, Electric
Interior Features
Ceiling Fan(s), Open Floorplan, Primary Bedroom Main Floor, Solid Surface Counters, Thermostat, Walk-In Closet(s)
Pet Restrictions
Buyer/Buyer's agent to verify all pet restrictions with local government.
Utilities
Electricity Connected, Fiber Optics, Street Lights

Exterior Information

PropertySubType
Single Family Residence
Construction Materials
Block
Exterior Features
Irrigation System
Foundation Details
Crawlspace, Slab
Lot Size Acres
0.54
Lot Size Square Feet
23411
Roof
Shingle

Additional Information

Country
US
County / Parish
Orange
Postal Code
32703
Street Name
MENDELIN
Street Number
2704
Street Suffix
STREET
Tax Year
2024
Total Acreage
1/2 to less than 1
Year Built
1965

Financial and Legal Information

Cumulative Days On Market
30
Days On Market
30
Flood Zone Code
X
Flood Zone Date
September 9, 2009
Flood Zone Panel
12095C0140F
List Price
$545000.00
Listing Contract Date
January 1, 2026
Original List Price
560000
Parcel Number
122128468401090
Pets Allowed
Yes
Special Listing Conditions
None
Tax Annual Amount
6271
Tax Book Number
R-102
Tax Lot
9
Zoning
R-1
Tax Legal Description
LAKE MENDELIN ESTATES R/102 LOT 9 & 10 BLK A

Learn More About This Property

CAPTCHA
"