2676 ESTUARY
Basic Information
List Status
Active
Property Type
Residential
Address
2676 ESTUARY
OVIEDO, FL 32765
United States
Current Price
$1,025,000.00
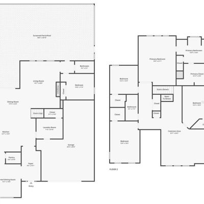
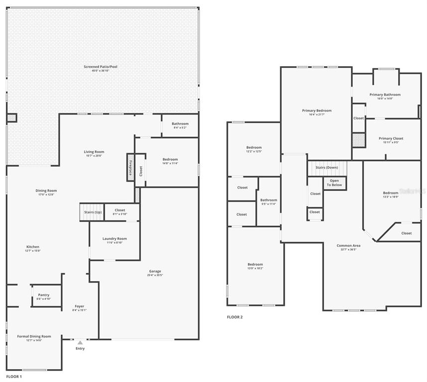
Square Feet
3833
Price Per Square Foot
$267.41
List Office Name
COLDWELL BANKER REALTY
List Agent Full Name
Melinda Jarzynka
Subdivision Name
HIDEAWAY COVE AT OVIEDO PH 3
Interior Information
Appliances
Built-In Oven, Cooktop, Dishwasher, Disposal, Microwave
Bedrooms
5
Bathrooms
3
Bathrooms Full
3
Cooling
Central Air
Flooring
Carpet, Ceramic Tile, Hardwood
Heating
Central, Electric
Interior Features
Cathedral Ceiling(s), Ceiling Fan(s), Eating Space In Kitchen, High Ceilings, Open Floorplan, PrimaryBedroom Upstairs, Stone Counters, Walk-In Closet(s)
Utilities
Cable Connected, Electricity Connected, Mini Sewer, Public, Water Connected
Exterior Information
PropertySubType
Single Family Residence
Construction Materials
Block, Stucco
Exterior Features
Irrigation System, Rain Gutters, Sidewalk, Sliding Doors
Foundation Details
Slab
Lot Size Acres
0.21
Lot Size Square Feet
9053
Lot Features
Conservation Area, Sidewalk
Roof
Shingle
Additional Information
Community Features
Gated Community - No Guard, Playground, Sidewalks
Country
US
County / Parish
Seminole
Postal Code
32765
Street Name
ESTUARY
Street Number
2676
Street Suffix
LOOP
Tax Year
2024
Total Acreage
0 to less than 1/4
Year Built
2021
Financial and Legal Information
Association Fee Frequency
Monthly
Association Fee Requirement
Required
Association Fee
137
Cumulative Days On Market
1
Days On Market
1
Flood Zone Code
X
List Price
$1025000.00
Listing Contract Date
April 4, 2026
Monthly HOA Amount
137
Original List Price
1025000
Parcel Number
25213150600000940
Pets Allowed
Yes
Special Listing Conditions
None
Tax Annual Amount
9036.03
Tax Book Number
86-54-59
Tax Lot
94
Zoning
PD
Tax Legal Description
LOT 94 HIDEAWAY COVE AT OVIEDO PHASE 3 PLAT BOOK 86 PAGES 54-59