2470 CHURCH

Basic Information

List Status
Active
Property Type
Residential
Last Updated
MLS Listing Updated
Created
Address

2470 CHURCH
SANFORD, FL 32771
United States

Current Price
$289,000.00
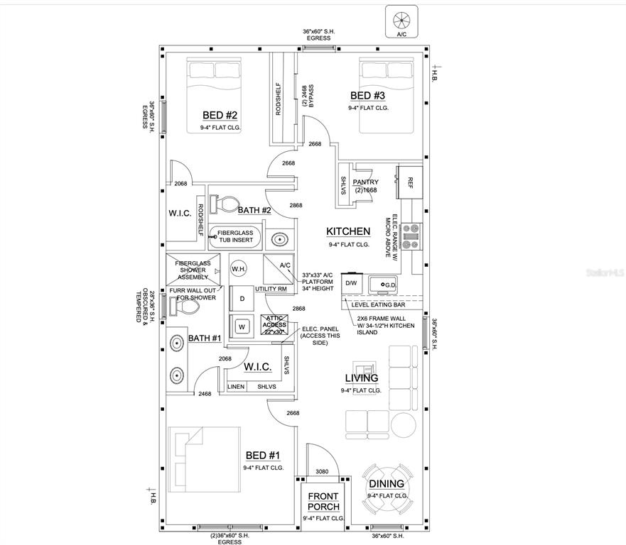
Square Feet
1107
Price Per Square Foot
$261.07
List Office Name
UNITED REAL ESTATE PREFERRED
List Agent Full Name
Timothy Snell
Subdivision Name
MIDWAY

Interior Information

Appliances
Cooktop, Dishwasher, Disposal, Electric Water Heater, Microwave
Bedrooms
3
Bathrooms
2
Bathrooms Full
2
Cooling
Central Air
Flooring
Luxury Vinyl
Heating
Central
Interior Features
Ceiling Fan(s), High Ceilings, Walk-In Closet(s)
Utilities
BB/HS Internet Available, Cable Available

Exterior Information

PropertySubType
Single Family Residence
Construction Materials
Block
Exterior Features
Other
Foundation Details
Slab
Lot Size Acres
0.09
Lot Size Square Feet
3941
Roof
Shingle

Additional Information

Country
US
County / Parish
Seminole
Postal Code
32771
Street Name
CHURCH
Street Number
2470
Street Suffix
STREET
Tax Year
2024
Total Acreage
0 to less than 1/4
Year Built
2025

Financial and Legal Information

Flood Zone Code
X
Flood Zone Date
September 9, 2007
Flood Zone Panel
12117C0090F
List Price
$289000.00
Listing Contract Date
January 1, 2026
Original List Price
289000
Parcel Number
32193151300002170
Special Listing Conditions
None
Tax Annual Amount
313.49
Tax Book Number
1-41
Tax Lot
217
Zoning
R-1
Tax Legal Description
LOT 217 MIDWAY PB 1 PG 41

Learn More About This Property

CAPTCHA
"