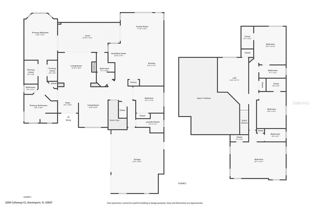
2209 CALLAWAY

Basic Information

List Status
Active
Property Type
Residential
Last Updated
MLS Listing Updated
Created
Address

2209 CALLAWAY
DAVENPORT, FL 33837
United States

Current Price
$675,000.00
Square Feet
4034
Price Per Square Foot
$167.33
List Office Name
WINDMAKER REALTY
List Agent Full Name
Yan Bohyn
Subdivision Name
GREENS AT PROVIDENCE

Interior Information

Appliances
Built-In Oven, Cooktop, Washer
Bedrooms
4
Bathrooms
4
Bathrooms Full
4
Cooling
Central Air
Flooring
Carpet, Engineered Hardwood
Heating
Heat Pump
Interior Features
Ceiling Fan(s)
Utilities
Cable Available, Electricity Connected, Sewer Connected, Water Connected

Exterior Information

PropertySubType
Single Family Residence
Construction Materials
Stucco
Exterior Features
French Doors, Sidewalk
Foundation Details
Slab
Lot Size Acres
0.20
Lot Size Square Feet
8586
Roof
Tile

Additional Information

Country
US
County / Parish
Polk
Postal Code
33837
Street Name
CALLAWAY
Street Number
2209
Street Suffix
COURT
Tax Year
2024
Total Acreage
0 to less than 1/4
Year Built
2007

Financial and Legal Information

Association Fee Frequency
Quarterly
Association Fee Requirement
Required
Association Fee
430
Cumulative Days On Market
170
Days On Market
170
Flood Zone Code
no
List Price
$675000.00
Listing Contract Date
June 6, 2025
Monthly HOA Amount
143.33
Original List Price
690000
Parcel Number
282618932901020020
Pets Allowed
Yes
Special Listing Conditions
None
Tax Annual Amount
7832.71
Tax Book Number
142-37-44
Tax Lot
2
Tax Legal Description
GREENS AT PROVIDENCE PB 142 PG 37-44 BLOCK B LOT 2

Learn More About This Property

CAPTCHA
"