2100 BABBLING BROOK

Basic Information

List Status
Active
Property Type
Residential
Last Updated
MLS Listing Updated
Created
Address

2100 BABBLING BROOK
AUBURNDALE, FL 33823
United States

Current Price
$402,999.00
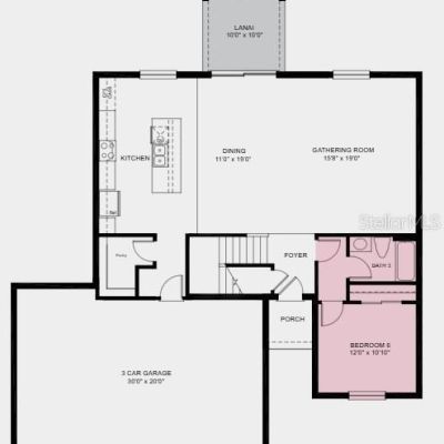
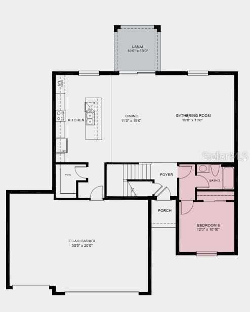
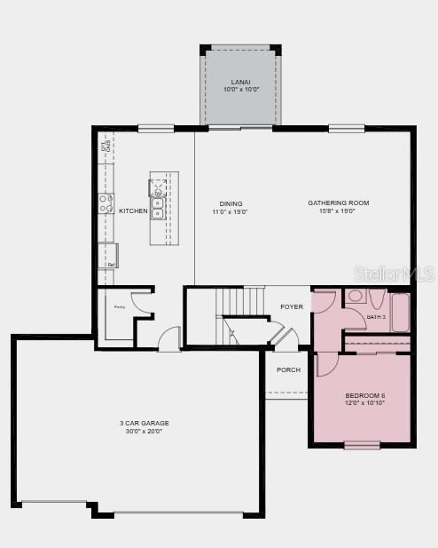
Square Feet
2303
Price Per Square Foot
$174.99
List Office Name
TAYLOR MORRISON REALTY OF FL
List Agent Full Name
Michelle Campbell
Subdivision Name
BROOKLAND PARK

Interior Information

Appliances
Dishwasher, Disposal, Dryer, Electric Water Heater, Exhaust Fan, Microwave, Range, Refrigerator, Washer
Bedrooms
5
Bathrooms
3
Bathrooms Full
3
Cooling
Central Air
Flooring
Carpet, Luxury Vinyl, Tile
Heating
Electric
Interior Features
Open Floorplan, Walk-In Closet(s), Window Treatments
Pet Restrictions
See community sales manager for details.
Utilities
BB/HS Internet Available, Cable Available, Electricity Connected, Sewer Connected, Sprinkler Meter, Underground Utilities, Water Connected

Exterior Information

PropertySubType
Single Family Residence
Construction Materials
Block, Concrete, Stucco
Exterior Features
Irrigation System, Sliding Doors
Foundation Details
Slab
Lot Size Acres
0.21
Lot Size Square Feet
9260
Roof
Shingle

Additional Information

Community Features
Community Mailbox, Playground, Pool, Sidewalks, Wheelchair Access
Country
US
County / Parish
Polk
Postal Code
33823
Street Name
BABBLING BROOK
Street Number
2100
Street Suffix
BOULEVARD
Tax Year
2025
Total Acreage
0 to less than 1/4
Year Built
2026

Financial and Legal Information

Association Fee Frequency
Monthly
Association Fee Includes
Community Pool, Pool Maintenance
Association Fee Requirement
Required
Association Fee
120
Cumulative Days On Market
1
Days On Market
1
Flood Zone Code
x
List Price
$402999.00
Listing Contract Date
January 1, 2026
Monthly HOA Amount
120
Number Of Pets
3
Original List Price
402999
Parcel Number
252801307626000400
Pets Allowed
Breed Restrictions, Number Limit, Yes
Special Listing Conditions
None
Tax Annual Amount
3735
Tax Book Number
196-35-38
Tax Lot
40
Tax Legal Description
BROOKLAND PARK PB 196 PGS 35-38 LOT 40

Learn More About This Property

CAPTCHA
"