210 NASSAU
Basic Information
List Status
Active
Property Type
Residential
Address
210 NASSAU
WINTER HAVEN, FL 33884
United States
Current Price
$518,000.00
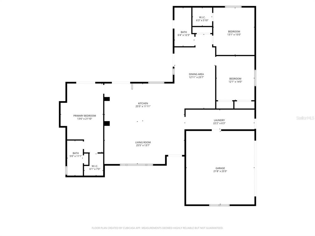
Square Feet
1987
Price Per Square Foot
$260.69
List Office Name
KELLER WILLIAMS REALTY SMART 1
List Agent Full Name
Sam Daniels
Subdivision Name
ELOISE WOODS LAKE MARIAM UNIT
Interior Information
Appliances
Dishwasher, Microwave, Range, Refrigerator
Bedrooms
3
Bathrooms
2
Bathrooms Full
2
Cooling
Central Air
Flooring
Luxury Vinyl
Heating
Central
Interior Features
Split Bedroom, Walk-In Closet(s)
Pet Restrictions
Buyer or buyer agent responsible for verifying
Utilities
BB/HS Internet Available, Cable Connected, Electricity Connected, Public, Sewer Connected, Water Connected
Exterior Information
PropertySubType
Single Family Residence
Construction Materials
Block
Exterior Features
Dog Run
Foundation Details
Slab
Lot Size Acres
0.41
Lot Size Square Feet
17951
Roof
Shingle
Additional Information
Country
US
County / Parish
Polk
Postal Code
33884
Street Name
NASSAU
Street Number
210
Street Suffix
ROAD
Tax Year
2025
Total Acreage
1/4 to less than 1/2
Year Built
1975
Financial and Legal Information
Cumulative Days On Market
1
Days On Market
1
Flood Zone Code
X
Flood Zone Date
December 12, 2016
Flood Zone Panel
12105C0364G
List Price
$518000.00
Listing Contract Date
March 3, 2026
Original List Price
518000
Parcel Number
262834662000001390
Pets Allowed
Yes
Special Listing Conditions
None
Tax Annual Amount
1663.43
Tax Book Number
17-49
Tax Lot
139
Zoning
R-1
Tax Legal Description
ELOISE WOODS LAKE MARIAM UNIT PB 17 PG 49 49A 49B LOTS 139 & 140