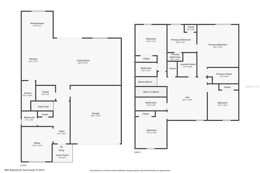
2091 BRILLANTE
Basic Information
List Status
Active
Property Type
Residential
Address
2091 BRILLANTE
ST CLOUD, FL 34771
United States
Current Price
$500,000.00
Square Feet
2963
Price Per Square Foot
$168.75
List Office Name
ROBERT MICHAEL & COMPANY INC.
List Agent Full Name
Robert Micha Medrano Diaz, Sr
Subdivision Name
SOLA VISTA
Interior Information
Appliances
Dishwasher, Disposal, Electric Water Heater, Microwave, Range, Refrigerator
Bedrooms
4
Bathrooms
4
Bathrooms Full
3
Bathrooms Half
1
Cooling
Central Air
Flooring
Ceramic Tile, Luxury Vinyl
Heating
Central
Interior Features
High Ceilings, Kitchen/Family Room Combo, Open Floorplan, Stone Counters, Thermostat
Pet Restrictions
ALL PET RESTRICTIONS MUST BE CONFIRMED WITH THE HOA
Utilities
BB/HS Internet Available, Cable Connected, Electricity Connected, Public, Sewer Connected
Exterior Information
PropertySubType
Single Family Residence
Construction Materials
Block, Stucco, Wood Frame
Exterior Features
Dog Run, Irrigation System, Sidewalk, Sliding Doors, Sprinkler Metered
Foundation Details
Slab
Lot Size Acres
0.15
Lot Size Square Feet
6534
Roof
Shingle
Additional Information
Community Features
Dog Park, Playground, Pool
Country
US
County / Parish
Osceola
Postal Code
34771
Street Name
BRILLANTE
Street Number
2091
Street Suffix
DRIVE
Tax Year
2025
Total Acreage
0 to less than 1/4
Year Built
2021
Financial and Legal Information
Association Fee Frequency
Monthly
Association Fee Requirement
Required
Association Fee
127
Cumulative Days On Market
1
Days On Market
1
Flood Zone Code
X
List Price
$500000.00
Listing Contract Date
February 2, 2026
Monthly HOA Amount
127
Original List Price
500000
Parcel Number
092631504200011060
Pets Allowed
Yes
Special Listing Conditions
None
Tax Annual Amount
7417.72
Tax Book Number
27-171-174
Tax Lot
106
Zoning
SFH
Tax Legal Description
SOLA VISTA PB 27 PGS 171-174 LOT 106