2030 ANGEL FISH

Basic Information

List Status
Active
Property Type
Residential
Last Updated
MLS Listing Updated
Created
Address

2030 ANGEL FISH
LEESBURG, FL 34748
United States

Current Price
$389,000.00
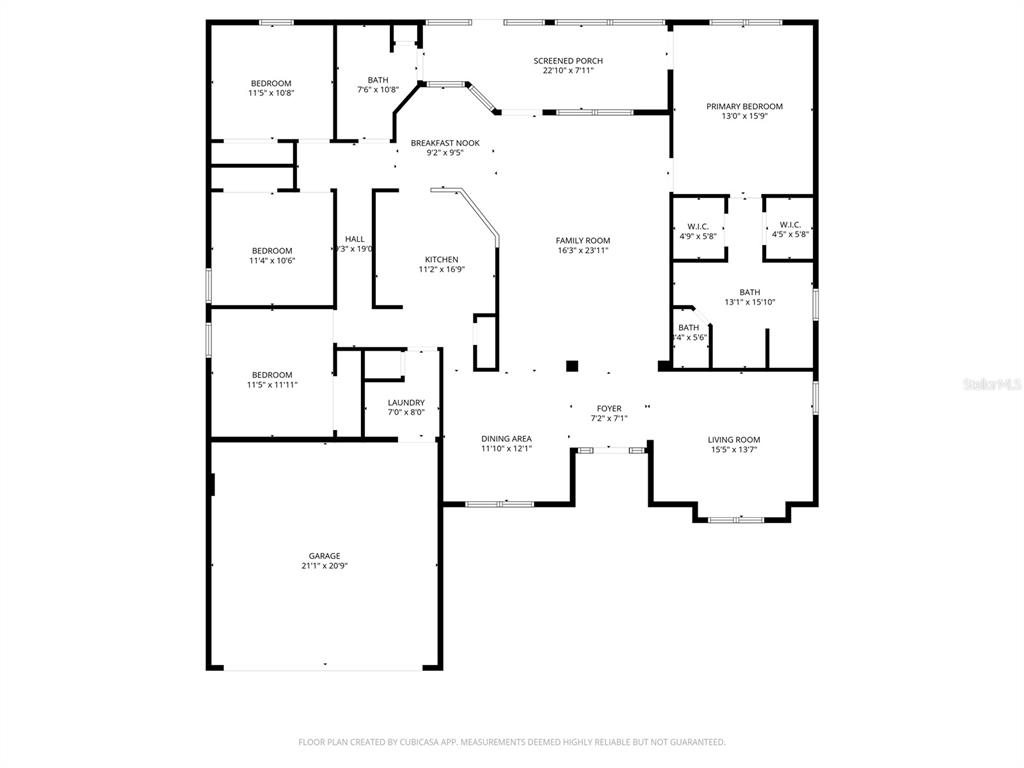
Square Feet
2330
Price Per Square Foot
$166.95
List Office Name
HARRISON REAL PROPERTY GROUP
List Agent Full Name
Amanda Harrison
Subdivision Name
LEESBURG ASHTON WOODS

Interior Information

Appliances
Dishwasher, Disposal, Electric Water Heater, Microwave, Range, Refrigerator
Bedrooms
4
Bathrooms
2
Bathrooms Full
2
Cooling
Central Air
Flooring
Carpet, Luxury Vinyl, Tile
Heating
Central, Electric, Heat Pump
Interior Features
Ceiling Fan(s), Eating Space In Kitchen, High Ceilings, Primary Bedroom Main Floor, Split Bedroom, Thermostat, Vaulted Ceiling(s), Walk-In Closet(s), Window Treatments
Pet Restrictions
Buyer and buyer agent to confirm all information with HOA,City of Leesburg and Lake County
Utilities
BB/HS Internet Available, Electricity Available, Electricity Connected, Public, Sewer Connected, Sprinkler Meter, Water Connected

Exterior Information

PropertySubType
Single Family Residence
Construction Materials
Block, Stucco
Exterior Features
French Doors, Irrigation System, Rain Gutters, Sidewalk
Foundation Details
Slab
Lot Size Acres
0.25
Lot Size Square Feet
11250
Lot Features
Cleared, City Lot, Landscaped, Oversized Lot, Sidewalk
Roof
Shingle

Additional Information

Community Features
Community Mailbox, Sidewalks, Special Community Restrictions
Country
US
County / Parish
Lake
Postal Code
34748
Street Name
ANGEL FISH
Street Number
2030
Street Suffix
LOOP
Tax Year
2025
Total Acreage
1/4 to less than 1/2
Year Built
2018

Financial and Legal Information

Association Fee Frequency
Quarterly
Association Fee Includes
Common Area Taxes, Maintenance Grounds
Association Fee Requirement
Required
Association Fee
86.55
Cumulative Days On Market
63
Days On Market
63
Flood Zone Code
X
Flood Zone Date
December 12, 2012
List Price
$389000.00
Listing Contract Date
December 12, 2025
Monthly HOA Amount
28.85
Original List Price
389000
Parcel Number
301925002000010700
Pets Allowed
Yes
Special Listing Conditions
None
Tax Annual Amount
2221.95
Tax Book Number
62/74-76
Tax Lot
107
Zoning
R-2
Tax Legal Description
ASHTON WOODS PB 62 PG 74-76 LOT 107 ORB 5155 PG 673

Learn More About This Property

CAPTCHA
"