203 CELEBRATION

Basic Information

List Status
Active
Property Type
Residential
Last Updated
MLS Listing Updated
Created
Address

203 CELEBRATION
CELEBRATION, FL 34747
United States

Current Price
$1,249,000.00
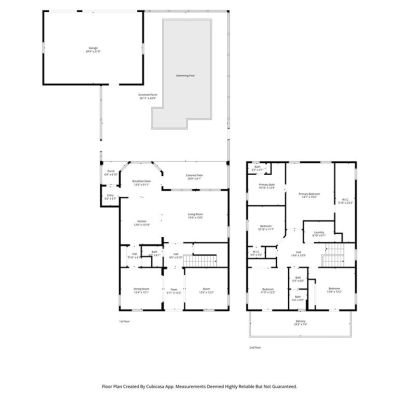
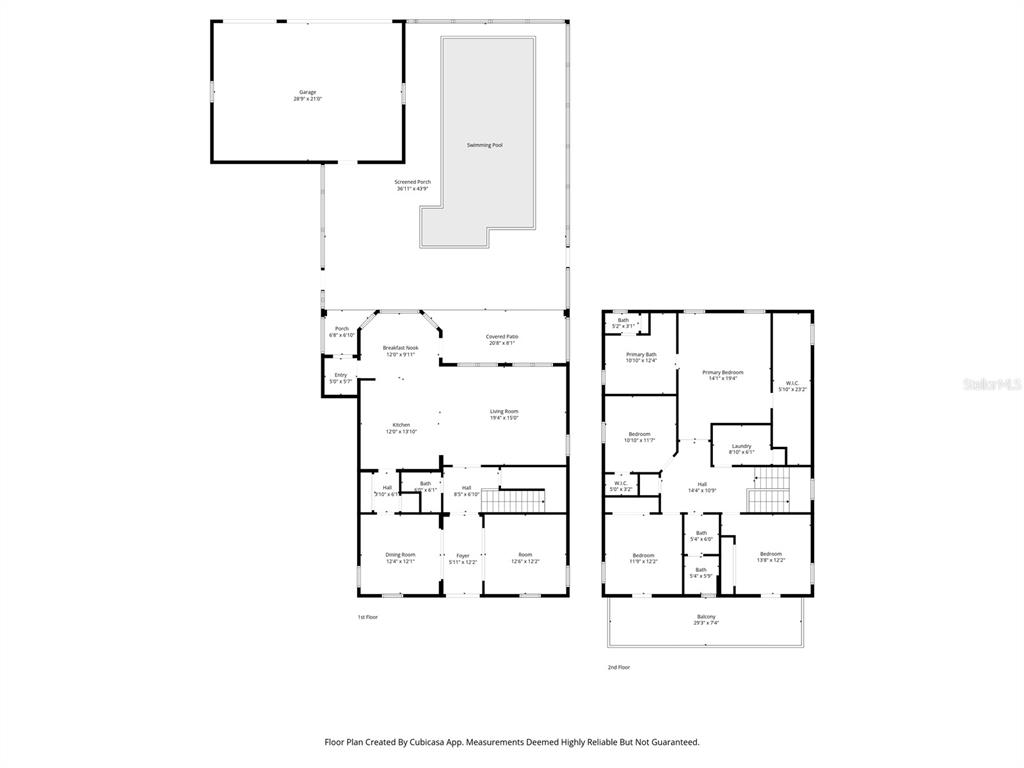
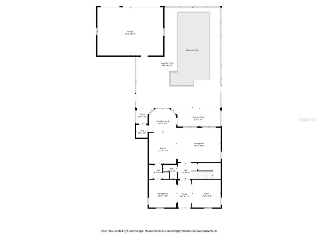
Square Feet
2770
Price Per Square Foot
$450.90
List Office Name
SERHANT
List Agent Full Name
Vanessa Scotland, PA
Subdivision Name
CELEBRATION NORTH VILLAGE UNIT 3

Interior Information

Appliances
Dishwasher, Disposal, Microwave, Range, Range Hood
Bedrooms
4
Bathrooms
3
Bathrooms Full
2
Bathrooms Half
1
Cooling
Central Air
Flooring
Carpet, Ceramic Tile, Luxury Vinyl
Heating
Central, Electric
Interior Features
Ceiling Fan(s), Crown Molding, High Ceilings, Kitchen/Family Room Combo, PrimaryBedroom Upstairs, Solid Surface Counters, Solid Wood Cabinets, Thermostat, Walk-In Closet(s), Window Treatments
Pet Restrictions
Buyer to verify pet restrictions with HOA.
Utilities
Cable Available

Exterior Information

PropertySubType
Single Family Residence
Construction Materials
Block, Concrete, Stucco
Exterior Features
Balcony, Other, Sidewalk
Foundation Details
Slab
Lot Size Acres
0.22
Lot Size Square Feet
9409
Lot Features
Landscaped
Roof
Shingle

Additional Information

Community Features
Clubhouse, Deed Restrictions, Dog Park, Golf Carts OK, Playground, Pool
Country
US
County / Parish
Osceola
Postal Code
34747
Street Name
CELEBRATION
Street Number
203
Street Suffix
BOULEVARD
Tax Year
2025
Total Acreage
0 to less than 1/4
Year Built
1999

Financial and Legal Information

Association Fee Frequency
Quarterly
Association Fee Requirement
Required
Association Fee
445
Cumulative Days On Market
4
Days On Market
4
Flood Zone Code
X
Flood Zone Date
June 6, 2013
Flood Zone Panel
12097C0035G
List Price
$1249000.00
Listing Contract Date
April 4, 2026
Monthly HOA Amount
148.33
Original List Price
1249000
Parcel Number
072528280500011990
Pets Allowed
Cats OK, Dogs OK, Yes
Special Listing Conditions
None
Tax Annual Amount
13717
Tax Book Number
9-181
Tax Lot
199
Zoning
OPUD
Tax Legal Description
CELEBRATION NORTH VILLAGE UNIT 3 PB 9 PG 181-184 LOT 199 08-25-28

Learn More About This Property

CAPTCHA
"