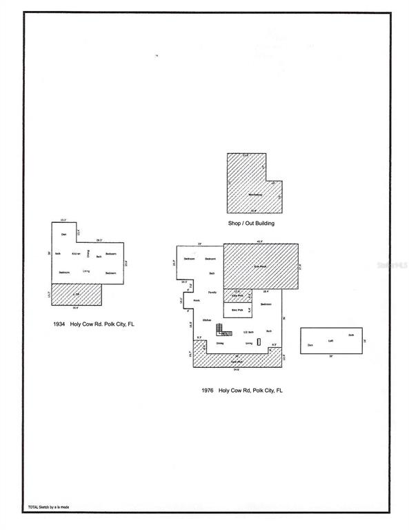
1976 HOLY COW

Basic Information

List Status
Active
Property Type
Residential
Last Updated
MLS Listing Updated
Created
Address

1976 HOLY COW
POLK CITY, FL 33868
United States

Current Price
$925,000.00
Square Feet
3479
Price Per Square Foot
$265.88
List Office Name
LOCKHART & ASSOCIATES INC
List Agent Full Name
Paula Penna
Subdivision Name
NOT IN SUBDIVISION

Interior Information

Appliances
Built-In Oven, Cooktop, Dishwasher, Disposal, Electric Water Heater, Exhaust Fan, Refrigerator, Water Filtration System
Bedrooms
4
Bathrooms
4
Bathrooms Full
3
Bathrooms Half
1
Cooling
Central Air, Wall/Window Unit(s)
Flooring
Carpet, Ceramic Tile, Engineered Hardwood, Luxury Vinyl, Hardwood
Heating
Electric, Heat Pump
Interior Features
Built-in Features, Ceiling Fan(s), Crown Molding, High Ceilings, Kitchen/Family Room Combo, Living Room/Dining Room Combo, Primary Bedroom Main Floor, Solid Surface Counters, Split Bedroom, Walk-In Closet(s), Window Treatments
Utilities
BB/HS Internet Available, Cable Available, Electricity Connected, Water Connected

Exterior Information

PropertySubType
Single Family Residence
Construction Materials
HardiPlank Type, Metal Frame, Wood Frame
Exterior Features
Lighting, Private Mailbox, Rain Gutters, Sliding Doors
Foundation Details
Crawlspace, Slab
Lot Size Acres
9.95
Lot Size Square Feet
433422
Lot Features
In County, Landscaped, Zoned for Horses
Roof
Membrane, Metal, Shingle

Additional Information

Country
US
County / Parish
Polk
Postal Code
33868
Street Name
HOLY COW
Street Number
1976
Street Suffix
ROAD
Tax Year
2024
Total Acreage
5 to less than 10
Year Built
1997

Financial and Legal Information

Cumulative Days On Market
153
Days On Market
153
Flood Zone Code
X
Flood Zone Date
December 12, 2016
Flood Zone Panel
12105C0195G
List Price
$925000.00
Listing Contract Date
June 6, 2025
Original List Price
975000
Parcel Number
252636000000034070
Special Listing Conditions
None
Tax Annual Amount
2460
Tax Book Number
P-81
Tax Legal Description
E1/4 OF N1/4 OF N1/2 OF SW1/4 OF NW1/4

Learn More About This Property

CAPTCHA
"