1922 SHERBOURNE

Basic Information

List Status
Active
Property Type
Residential
Last Updated
MLS Listing Updated
Created
Address

1922 SHERBOURNE
WINTER GARDEN, FL 34787
United States

Current Price
$432,500.00
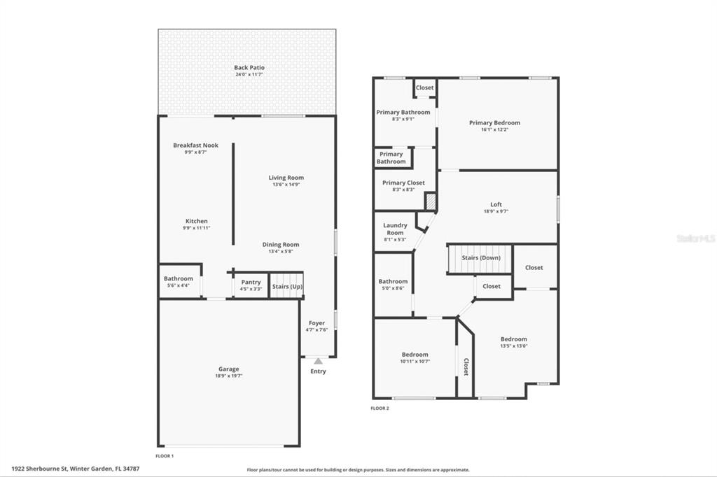
Square Feet
1717
Price Per Square Foot
$251.89
List Office Name
ERA GRIZZARD REAL ESTATE
List Agent Full Name
Wendy Moore
Subdivision Name
STONE CREEK 44/131

Interior Information

Appliances
Dishwasher, Disposal, Dryer, Electric Water Heater, Microwave, Range, Refrigerator, Washer
Bedrooms
3
Bathrooms
3
Bathrooms Full
2
Bathrooms Half
1
Cooling
Central Air
Flooring
Carpet, Ceramic Tile, Laminate
Heating
Central, Electric
Interior Features
Ceiling Fan(s), Eating Space In Kitchen, High Ceilings, PrimaryBedroom Upstairs, Thermostat, Walk-In Closet(s), Window Treatments
Pet Restrictions
Please check/verify with HOA Pet Restrictions, if any.
Utilities
BB/HS Internet Available, Cable Connected, Electricity Connected, Fiber Optics, Public, Sewer Connected, Street Lights, Water Connected

Exterior Information

PropertySubType
Single Family Residence
Construction Materials
Block, Stucco
Exterior Features
Lighting, Private Mailbox, Rain Gutters, Sidewalk, Sliding Doors
Foundation Details
Slab
Lot Size Acres
0.11
Lot Size Square Feet
4606
Roof
Shingle

Additional Information

Country
US
County / Parish
Orange
Postal Code
34787
Street Name
SHERBOURNE
Street Number
1922
Street Suffix
STREET
Tax Year
2024
Total Acreage
0 to less than 1/4
Year Built
2006

Financial and Legal Information

Association Fee Frequency
Quarterly
Association Fee Requirement
Required
Association Fee
137
Cumulative Days On Market
12
Days On Market
1
Flood Zone Code
X
Flood Zone Date
September 9, 2021
Flood Zone Panel
12095C0215H
List Price
$432500.00
Listing Contract Date
January 1, 2026
Monthly HOA Amount
45.67
Original List Price
432500
Parcel Number
042327823021121
Pets Allowed
Yes
Special Listing Conditions
None
Tax Annual Amount
3732.01
Tax Book Number
44-131
Tax Lot
121
Zoning
PUD
Tax Legal Description
STONE CREEK UNIT 1 44/131 LOT 121 BLK 21

Learn More About This Property

CAPTCHA
"