1904 FRANK

Basic Information

List Status
Active
Property Type
Residential
Last Updated
MLS Listing Updated
Created
Address

1904 FRANK
DAYTONA BEACH, FL 32119
United States

Current Price
$225,000.00
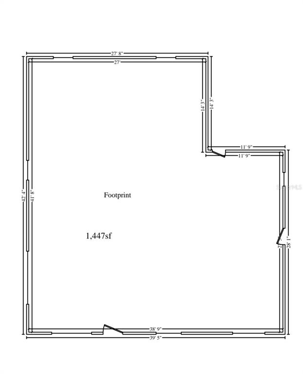
Square Feet
1447
Price Per Square Foot
$155.49
List Office Name
FLORIDA REALTY INVESTMENTS
List Agent Full Name
Ray Cendana, Jr
Subdivision Name
DAYTONA ESTATES

Interior Information

Appliances
Range, Range Hood, Refrigerator
Bedrooms
3
Bathrooms
2
Bathrooms Full
2
Cooling
Central Air
Flooring
Tile
Heating
Central
Interior Features
Ceiling Fan(s), Eating Space In Kitchen, Open Floorplan, Thermostat
Utilities
Electricity Available, Water Available

Exterior Information

PropertySubType
Single Family Residence
Construction Materials
Block, Concrete, Stucco
Exterior Features
Private Mailbox, Rain Gutters, Storage
Foundation Details
Slab
Lot Size Acres
0.15
Lot Size Square Feet
6600
Roof
Shingle

Additional Information

Country
US
County / Parish
Volusia
Postal Code
32119
Street Name
FRANK
Street Number
1904
Street Suffix
PLACE
Tax Year
2024
Total Acreage
0 to less than 1/4
Year Built
1974

Financial and Legal Information

Cumulative Days On Market
94
Days On Market
94
Flood Zone Code
A
Flood Zone Date
September 9, 2017
Flood Zone Panel
12127C0367J
List Price
$225000.00
Listing Contract Date
September 9, 2025
Original List Price
250000
Parcel Number
534101020190
Special Listing Conditions
None
Tax Annual Amount
2109.2
Tax Book Number
23-42
Tax Lot
19
Zoning
01R5
Tax Legal Description
LOT 19 BLK B DAYTONA ESTS MB 23 PGS 42 & 82 PER OR 4570 PG 0814 PER OR 7444 PG 4953

Learn More About This Property

CAPTCHA
"