18231 COMMONWEALTH

Basic Information

List Status
Active
Property Type
Residential
Last Updated
MLS Listing Updated
Created
Address

18231 COMMONWEALTH
POLK CITY, FL 33868
United States

Current Price
$492,500.00
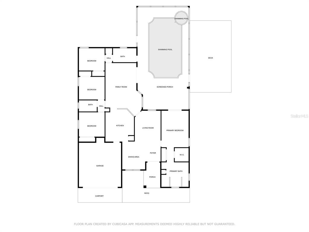
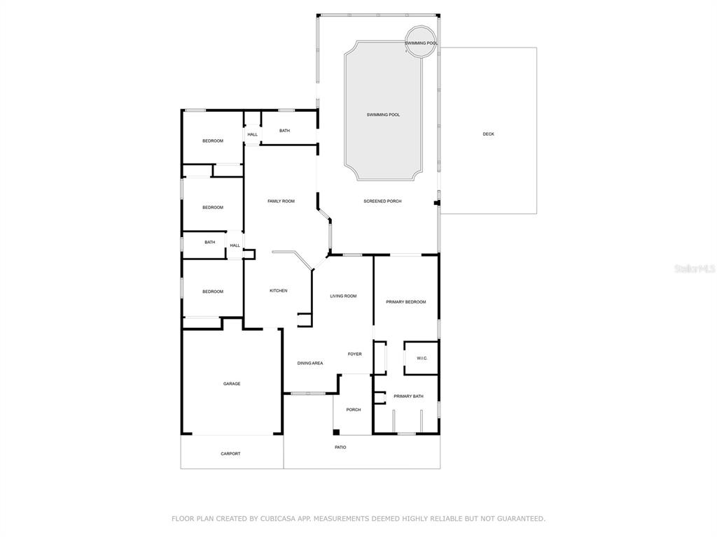
Square Feet
1979
Price Per Square Foot
$248.86
List Office Name
KELLER WILLIAMS REALTY SMART
List Agent Full Name
Casandra Vann
Subdivision Name
ACREAGE

Interior Information

Appliances
Dishwasher, Dryer, Electric Water Heater, Microwave, Range, Refrigerator, Washer, Water Softener
Bedrooms
4
Bathrooms
3
Bathrooms Full
3
Cooling
Central Air
Flooring
Luxury Vinyl, Tile
Heating
Central
Interior Features
Cathedral Ceiling(s), Eating Space In Kitchen, Kitchen/Family Room Combo, Living Room/Dining Room Combo, Open Floorplan, Primary Bedroom Main Floor, Solid Surface Counters, Solid Wood Cabinets, Stone Counters, Thermostat, Walk-In Closet(s)
Pet Restrictions
Zoned for horses, farm animals, chickens, dogs & cats
Utilities
BB/HS Internet Available, Cable Available, Electricity Connected

Exterior Information

PropertySubType
Single Family Residence
Construction Materials
Block, Concrete, Stucco
Exterior Features
Private Mailbox, Storage
Foundation Details
Block
Lot Size Acres
4.95
Lot Size Square Feet
215648
Lot Features
In County, Landscaped, Pasture, Unincorporated, Zoned for Horses
Roof
Shingle

Additional Information

Country
US
County / Parish
Polk
Postal Code
33868
Street Name
COMMONWEALTH
Street Number
18231
Street Suffix
AVENUE
Tax Year
2024
Total Acreage
2 to less than 5
Year Built
2007

Financial and Legal Information

Cumulative Days On Market
241
Days On Market
128
Flood Zone Code
A/X
Flood Zone Date
December 12, 2016
Flood Zone Panel
12105C0075G
List Price
$492500.00
Listing Contract Date
August 8, 2025
Original List Price
510000
Parcel Number
252508000000013040
Pets Allowed
Cats OK, Dogs OK, Yes
Special Listing Conditions
None
Tax Annual Amount
3978
Tax Book Number
P-81
Tax Lot
5
Tax Legal Description
LOT 5 OF UNRE SURVEY DESC AS BEG 509.47 FT S OF NE COR OF NW1/4 OF NE1/4 RUN S 100 FT W 2164.53 FT N 05 DEG 01 MIN 00 SEC E 100.4 FT E 2155.25 FT TO POB

Learn More About This Property

CAPTCHA
"