16333 INGRAM HILLS ALY

Basic Information

List Status
Active
Property Type
Residential
Last Updated
MLS Listing Updated
Created
Address

16333 INGRAM HILLS ALY
WINTER GARDEN, FL 34787
United States

Current Price
$434,999.00
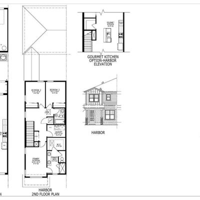
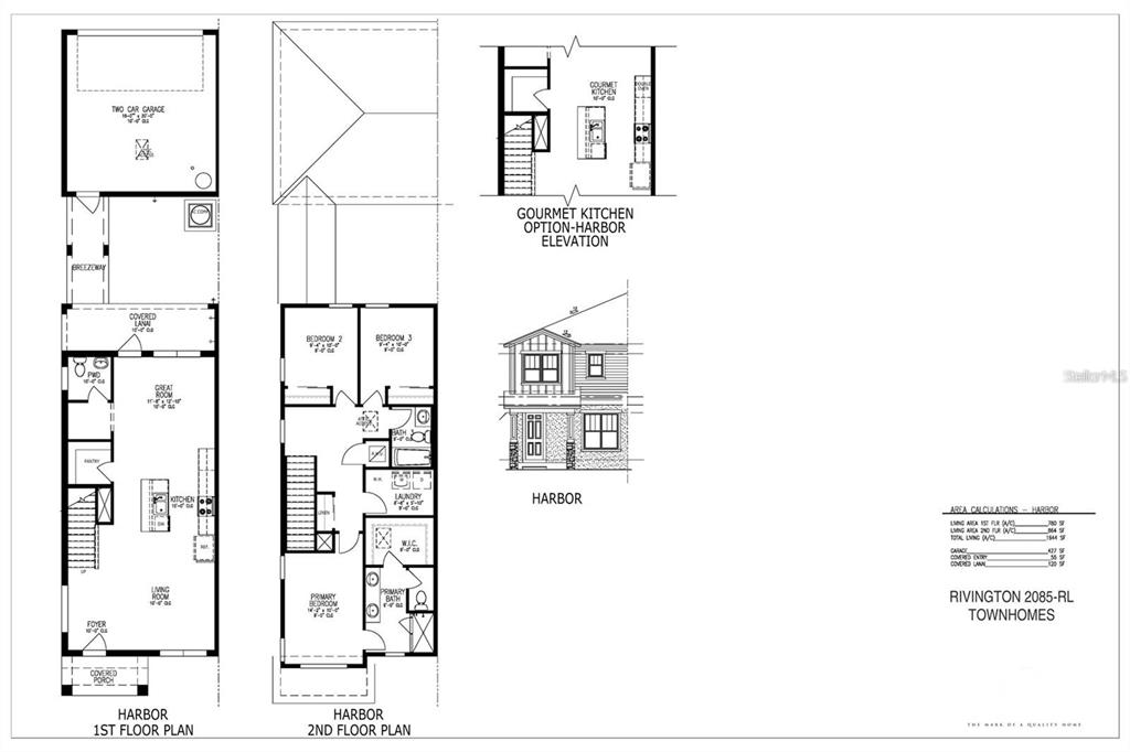
Square Feet
1644
Price Per Square Foot
$264.60
List Office Name
COMPASS FLORIDA LLC
List Agent Full Name
Tamara Schuster, PA
Subdivision Name
HAMLIN RIDGE

Interior Information

Appliances
Dishwasher, Disposal, Microwave, Range
Bedrooms
3
Bathrooms
3
Bathrooms Full
2
Bathrooms Half
1
Cooling
Central Air
Flooring
Carpet, Tile
Heating
Central
Interior Features
Eating Space In Kitchen, PrimaryBedroom Upstairs, Solid Surface Counters, Window Treatments
Utilities
Cable Available, Electricity Connected, Public, Sewer Connected, Street Lights, Underground Utilities, Water Connected

Exterior Information

PropertySubType
Townhouse
Construction Materials
Block, Stucco, Wood Frame (FSC Certified)
Exterior Features
Courtyard
Foundation Details
Slab
Lot Size Acres
0.09
Lot Size Square Feet
4019
Lot Features
Corner Lot, In County, Sidewalk
Roof
Shingle

Additional Information

Community Features
Community Mailbox, Deed Restrictions, Golf Carts OK, Playground, Sidewalks
Country
US
County / Parish
Orange
Postal Code
34787
Street Name
INGRAM HILLS ALY
Street Number
16333
Tax Year
2025
Total Acreage
0 to less than 1/4
Year Built
2024

Financial and Legal Information

Association Fee Frequency
Monthly
Association Fee Includes
Common Area Taxes, Insurance, Internet, Maintenance Structure, Maintenance Grounds
Association Fee Requirement
Required
Association Fee
225
Cumulative Days On Market
121
Days On Market
121
Flood Zone Code
X
Flood Zone Date
September 9, 2009
Flood Zone Panel
12095C0375F
List Price
$434999.00
Listing Contract Date
July 7, 2025
Monthly HOA Amount
225
Original List Price
468900
Parcel Number
192327270300080
Pets Allowed
Cats OK, Dogs OK, Yes
Special Listing Conditions
None
Tax Annual Amount
6644
Tax Book Number
112/35
Tax Lot
06
Zoning
P-D
Tax Legal Description
HAMLIN RIDGE 112/35 LOT 8

Learn More About This Property

CAPTCHA
"