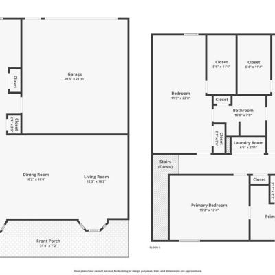
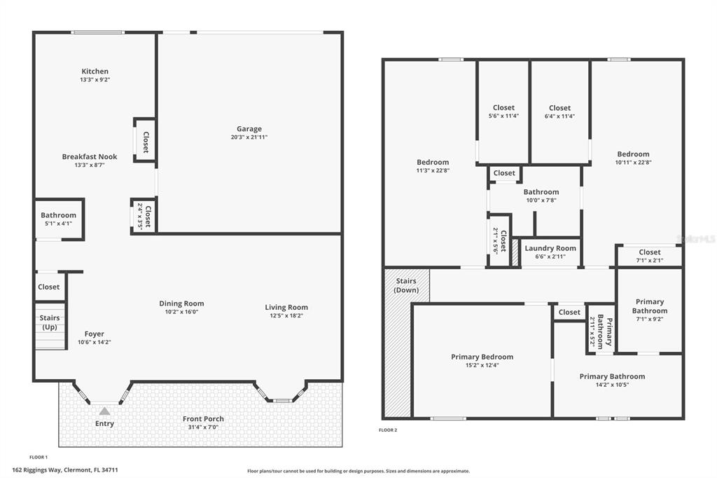
162 RIGGINGS
Basic Information
List Status
Active
Property Type
Residential
Address
162 RIGGINGS
CLERMONT, FL 34711
United States
Current Price
$465,000.00
Square Feet
2421
Price Per Square Foot
$192.07
List Office Name
KELLER WILLIAMS ELITE PARTNERS III REALTY
List Agent Full Name
Brandie Mathison-Klein
Subdivision Name
CLERMONT CLERMONT YACHT CLUB PH 02
Interior Information
Appliances
Built-In Oven, Cooktop, Dishwasher, Dryer, Microwave, Refrigerator, Washer
Bedrooms
3
Bathrooms
3
Bathrooms Full
2
Bathrooms Half
1
Cooling
Central Air
Flooring
Luxury Vinyl
Heating
Central
Interior Features
Ceiling Fan(s), Eating Space In Kitchen, PrimaryBedroom Upstairs, Stone Counters, Walk-In Closet(s)
Pet Restrictions
Pet restrictions have not been verified. It is buyer's responsibility to verify pet restrictions with the HOA.
Utilities
Electricity Connected, Sewer Connected
Exterior Information
PropertySubType
Townhouse
Construction Materials
Block, Vinyl Siding
Exterior Features
Sidewalk
Foundation Details
Slab
Lot Size Acres
0.09
Lot Size Square Feet
3710
Roof
Shingle
Additional Information
Community Features
Water Access, Clubhouse, Gated Community - No Guard, Pool
Country
US
County / Parish
Lake
Postal Code
34711
Street Name
RIGGINGS
Street Number
162
Street Suffix
WAY
Tax Year
2025
Total Acreage
0 to less than 1/4
Year Built
2006
Financial and Legal Information
Association Fee Frequency
Monthly
Association Fee Includes
Community Pool
Association Fee Requirement
Required
Association Fee
136.5
Cumulative Days On Market
1
Days On Market
1
Flood Zone Code
X
Flood Zone Date
December 12, 2012
Flood Zone Panel
12069C0560E
List Price
$465000.00
Listing Contract Date
February 2, 2026
Monthly HOA Amount
136.5
Number Of Pets
3
Original List Price
475000
Parcel Number
182226007600015200
Pets Allowed
Number Limit, Yes
Special Listing Conditions
None
Tax Annual Amount
2034
Tax Book Number
53-5-6
Tax Lot
152
Zoning
PUD
Tax Legal Description
CLERMONT YACHT CLUB PHASE 2 PB 53 PG 5-6 LOT 152--LESS N 2 FT--N 2 FT OF LOT 153 ORB 3144 PG 669