15907 MARINA BAY

Basic Information

List Status
Active
Property Type
Residential
Last Updated
MLS Listing Updated
Created
Address

15907 MARINA BAY
WINTER GARDEN, FL 34787
United States

Current Price
$450,000.00
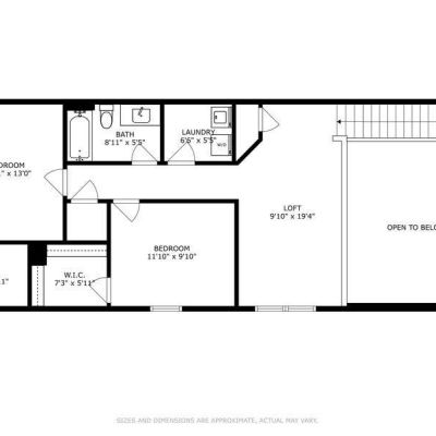
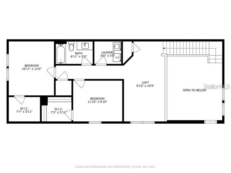
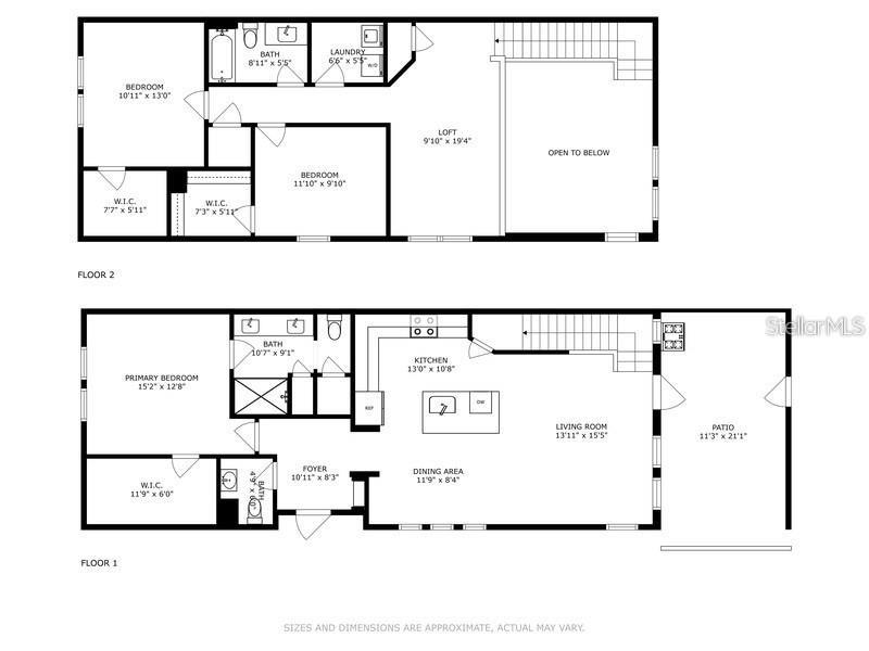
Square Feet
1818
Price Per Square Foot
$247.52
List Office Name
SIMPSON REALTY LLC
List Agent Full Name
Cristian Cen Chen
Subdivision Name
HAWKSMOOR-PH 1

Interior Information

Appliances
Cooktop, Dishwasher, Disposal, Dryer, Electric Water Heater, Microwave, Range, Refrigerator, Washer
Bedrooms
3
Bathrooms
3
Bathrooms Full
2
Bathrooms Half
1
Cooling
Central Air
Flooring
Carpet, Ceramic Tile
Heating
Central
Interior Features
Open Floorplan, Thermostat
Max Pet Weight
80
Pet Restrictions
Buyer must verify with HOA
Pet Size
Large (61-100 Lbs.)
Utilities
Electricity Connected, Public

Exterior Information

PropertySubType
Townhouse
Construction Materials
Other, Stone, Stucco
Exterior Features
Other, Playground, Sidewalk, Sliding Doors
Foundation Details
Slab
Lot Size Acres
0.10
Lot Size Square Feet
4313
Roof
Shingle

Additional Information

Community Features
Clubhouse, Community Mailbox, Deed Restrictions, Fitness Center, Park, Playground, Pool, Sidewalks
Country
US
County / Parish
Orange
Postal Code
34787
Street Name
MARINA BAY
Street Number
15907
Street Suffix
DRIVE
Tax Year
2025
Total Acreage
0 to less than 1/4
Year Built
2020

Financial and Legal Information

Association Fee Frequency
Monthly
Association Fee Includes
Community Pool, Other, Pool Maintenance
Association Fee Requirement
Required
Association Fee
286
Flood Zone Code
X
Flood Zone Date
September 9, 2009
Flood Zone Panel
12095C0375F
List Price
$450000.00
Listing Contract Date
April 4, 2026
Monthly HOA Amount
286
Number Of Pets
4
Original List Price
450000
Parcel Number
312327272300190
Pets Allowed
Cats OK, Dogs OK
Special Listing Conditions
None
Tax Annual Amount
7110
Tax Book Number
X
Tax Lot
19
Zoning
P-D
Tax Legal Description
HAWKSMOOR - PHASE 1 93/108 LOT 19

Learn More About This Property

CAPTCHA
"