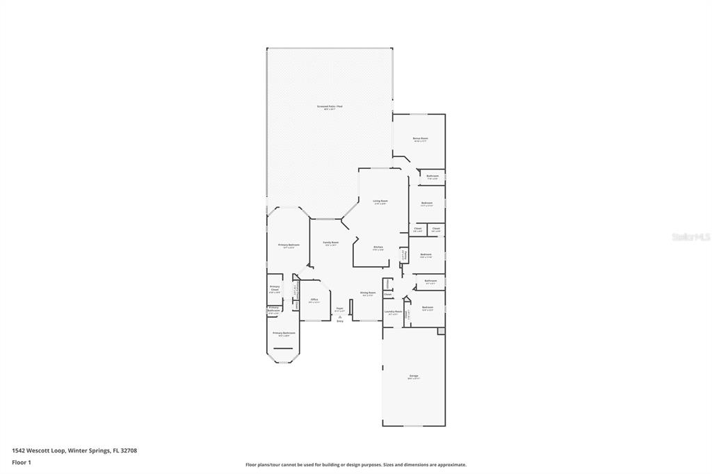
1542 WESCOTT

Basic Information

List Status
Active
Property Type
Residential
Last Updated
MLS Listing Updated
Created
Address

1542 WESCOTT
WINTER SPRINGS, FL 32708
United States

Current Price
$774,900.00
Square Feet
3242
Price Per Square Foot
$239.02
List Office Name
LIBERTY HOME SALES INC
List Agent Full Name
Lalta Sanichar
Subdivision Name
BARRINGTON ESTATES

Interior Information

Appliances
Cooktop, Dishwasher, Dryer, Electric Water Heater, Refrigerator, Washer
Bedrooms
4
Bathrooms
3
Bathrooms Full
3
Cooling
Central Air
Flooring
Carpet, Ceramic Tile, Engineered Hardwood
Heating
Central
Interior Features
Built-in Features, High Ceilings, L Dining, Primary Bedroom Main Floor, Thermostat, Walk-In Closet(s)
Utilities
Cable Available, Cable Connected, Phone Available

Exterior Information

PropertySubType
Single Family Residence
Construction Materials
Block
Exterior Features
Irrigation System, Private Mailbox, Sidewalk, Sliding Doors, Sprinkler Metered
Foundation Details
Slab
Lot Size Acres
0.29
Lot Size Square Feet
12675
Lot Features
Conservation Area
Roof
Shingle

Additional Information

Country
US
County / Parish
Seminole
Postal Code
32708
Street Name
WESCOTT
Street Number
1542
Street Suffix
LOOP
Tax Year
2024
Total Acreage
1/4 to less than 1/2
Year Built
2004

Financial and Legal Information

Association Fee Frequency
Monthly
Association Fee Requirement
Required
Association Fee
100
Cumulative Days On Market
255
Days On Market
77
Flood Zone Code
X500*
Flood Zone Date
September 9, 2007
Flood Zone Panel
12117C0180F
List Price
$774900.00
Listing Contract Date
October 10, 2025
Monthly HOA Amount
100
Original List Price
799000
Parcel Number
04213150600000530
Pets Allowed
Cats OK, Dogs OK
Special Listing Conditions
None
Tax Annual Amount
5399.79
Tax Book Number
62-77
Tax Lot
53
Zoning
R-1A
Tax Legal Description
LOT 53 BARRINGTON ESTATES PB 62 PGS 77 - 80

Learn More About This Property

CAPTCHA
"