1407 BERWYN

Basic Information

List Status
Active
Property Type
Residential
Last Updated
MLS Listing Updated
Created
Address

1407 BERWYN
ORLANDO, FL 32806
United States

Current Price
$504,900.00
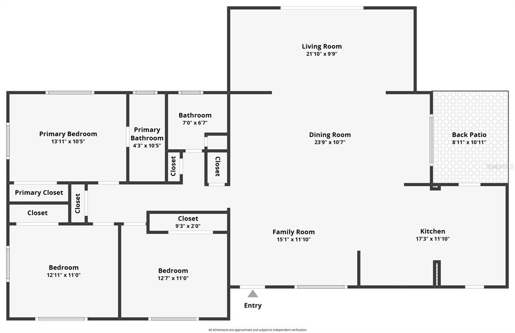
Square Feet
1671
Price Per Square Foot
$302.15
List Office Name
GLOBAL ENTERPRISE REALTY GROUP
List Agent Full Name
Darryl Henderson, Jr
Subdivision Name
DOVER SHORES FIFTH ADD

Interior Information

Appliances
Dishwasher, Disposal, Dryer, Electric Water Heater, Microwave, Range, Range Hood, Refrigerator, Washer, Wine Refrigerator
Bedrooms
3
Bathrooms
2
Bathrooms Full
2
Cooling
Central Air
Flooring
Laminate, Porcelain Tile
Heating
Electric
Interior Features
Cathedral Ceiling(s), Ceiling Fan(s), Dry Bar, High Ceilings, Primary Bedroom Main Floor, Stone Counters, Window Treatments
Utilities
Electricity Connected, Sewer Connected, Water Connected

Exterior Information

PropertySubType
Single Family Residence
Construction Materials
Block, Concrete
Exterior Features
Storage
Foundation Details
Slab
Lot Size Acres
0.22
Lot Size Square Feet
9482
Roof
Built-Up, Other

Additional Information

Country
US
County / Parish
Orange
Postal Code
32806
Street Name
BERWYN
Street Number
1407
Street Suffix
ROAD
Tax Year
2024
Total Acreage
0 to less than 1/4
Year Built
1957

Financial and Legal Information

Cumulative Days On Market
171
Days On Market
171
Flood Zone Code
X
Flood Zone Date
September 9, 2009
Flood Zone Panel
12095C0265F
List Price
$504900.00
Listing Contract Date
September 9, 2025
Original List Price
529900
Parcel Number
322230216203110
Special Listing Conditions
None
Tax Annual Amount
6868.97
Tax Book Number
V-51
Tax Lot
11
Zoning
R-1A/AN
Tax Legal Description
DOVER SHORES FIFTH ADDITION V/51 LOT 11BLK C

Learn More About This Property

CAPTCHA
"