1378 CHILEAN

Basic Information

List Status
Active
Property Type
Residential
Last Updated
MLS Listing Updated
Created
Address

1378 CHILEAN
WINTER PARK, FL 32792
United States

Current Price
$379,990.00
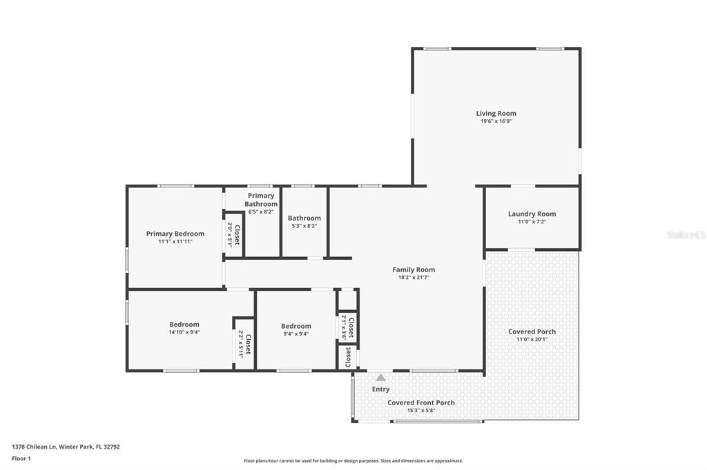
Square Feet
1424
Price Per Square Foot
$266.85
List Office Name
FUTURE HOME REALTY INC
List Agent Full Name
Constantin Florean
Subdivision Name
EASTBROOK SUB UNIT 05

Interior Information

Appliances
Dishwasher, Microwave, Range
Bedrooms
3
Bathrooms
2
Bathrooms Full
2
Cooling
Central Air
Flooring
Luxury Vinyl, Tile
Heating
Central
Interior Features
Ceiling Fan(s)
Utilities
Private, Public

Exterior Information

PropertySubType
Single Family Residence
Construction Materials
Block
Exterior Features
Lighting, Storage
Foundation Details
Slab
Lot Size Acres
0.19
Lot Size Square Feet
8360
Roof
Shingle

Additional Information

Country
US
County / Parish
Seminole
Postal Code
32792
Street Name
CHILEAN
Street Number
1378
Street Suffix
LANE
Tax Year
2024
Total Acreage
0 to less than 1/4
Year Built
1960

Financial and Legal Information

Cumulative Days On Market
1
Days On Market
1
Flood Zone Code
X
List Price
$379990.00
Listing Contract Date
January 1, 2026
Original List Price
379990
Parcel Number
34213050612000330
Special Listing Conditions
None
Tax Annual Amount
1006.05
Tax Book Number
12-81
Tax Lot
33
Zoning
R-1A
Tax Legal Description
LOT 33 BLK 12 EASTBROOK SUBD UNIT 5 PB 12 PG 81

Learn More About This Property

CAPTCHA
"