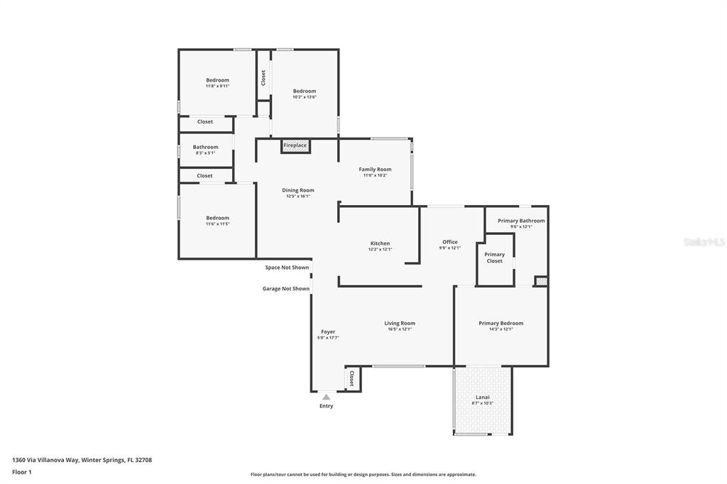
1360 VIA VILLA NOVA
Basic Information
List Status
Active
Property Type
Residential
Address
1360 VIA VILLA NOVA
WINTER SPRINGS, FL 32708
United States
Current Price
$549,900.00
Square Feet
2064
Price Per Square Foot
$266.42
List Office Name
CREEGAN GROUP
List Agent Full Name
Chris Creegan
Subdivision Name
SUNRISE UNIT 2-A
Interior Information
Appliances
Dishwasher, Microwave, Range, Refrigerator
Bedrooms
4
Bathrooms
2
Bathrooms Full
2
Cooling
Central Air
Flooring
Luxury Vinyl
Heating
Central, Electric
Interior Features
Ceiling Fan(s), Thermostat, Walk-In Closet(s), Window Treatments
Utilities
Electricity Connected, Sewer Connected
Exterior Information
PropertySubType
Single Family Residence
Construction Materials
Block
Exterior Features
Sidewalk, Sliding Doors
Foundation Details
Slab
Lot Size Acres
0.24
Lot Size Square Feet
10412
Lot Features
Landscaped, Sidewalk
Roof
Shingle
Additional Information
Country
US
County / Parish
Seminole
Postal Code
32708
Street Name
VIA VILLA NOVA
Street Number
1360
Street Suffix
WAY
Tax Year
2024
Total Acreage
0 to less than 1/4
Year Built
1980
Financial and Legal Information
Association Fee Frequency
Annually
Association Fee Requirement
Required
Association Fee
336
Cumulative Days On Market
21
Days On Market
21
Flood Zone Code
X
List Price
$549900.00
Listing Contract Date
September 9, 2025
Monthly HOA Amount
28
Original List Price
549900
Parcel Number
19213150100001110
Pets Allowed
Cats OK, Dogs OK
Special Listing Conditions
None
Tax Annual Amount
2836
Tax Book Number
0023/0031
Tax Lot
111
Zoning
RES
Tax Legal Description
Lot 111 SUNRISE UNIT 2-A PB 23 PG 31