13299 TULA LOOP

Basic Information

List Status
Active
Property Type
Residential
Last Updated
MLS Listing Updated
Created
Address

13299 TULA LOOP
ASTATULA, FL 34705
United States

Current Price
$319,900.00
Square Feet
1401
Price Per Square Foot
$228.34
List Office Name
LGI REALTY- FLORIDA, LLC
List Agent Full Name
Gayle Van Wagenen
Subdivision Name
TULA PARC

Interior Information

Appliances
Dishwasher, Disposal, Electric Water Heater, Exhaust Fan, Ice Maker, Microwave, Range, Refrigerator
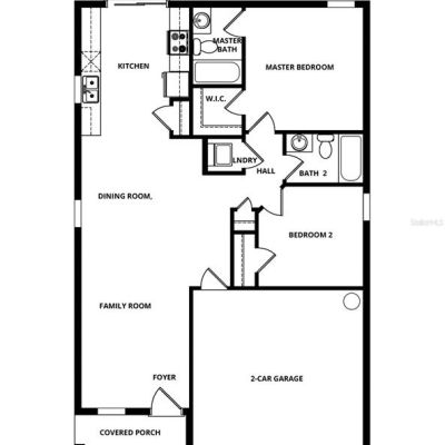
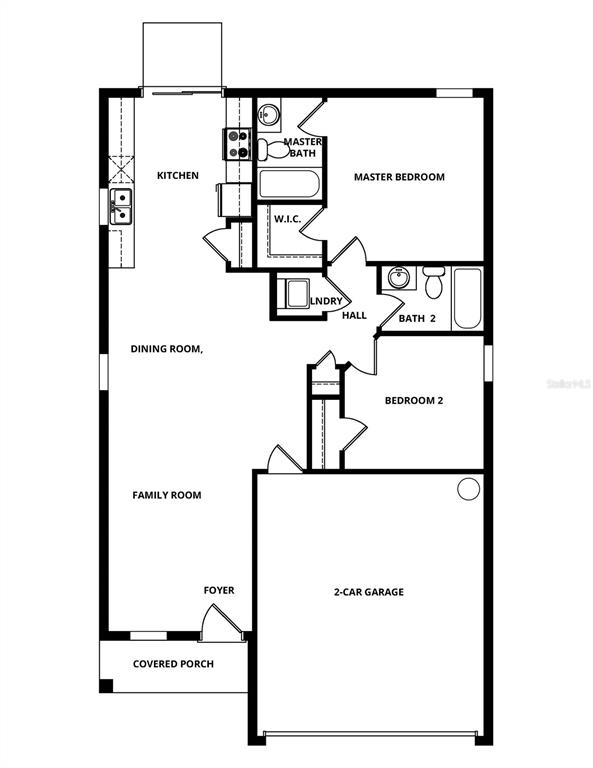
Bedrooms
3
Bathrooms
2
Bathrooms Full
2
Cooling
Central Air
Flooring
Carpet, Luxury Vinyl
Heating
Electric, Heat Pump
Interior Features
Ceiling Fan(s), Kitchen/Family Room Combo, Open Floorplan, Pest Guard System, Primary Bedroom Main Floor, Stone Counters, Thermostat, Walk-In Closet(s), Window Treatments
Utilities
Cable Available, Electricity Available, Electricity Connected, Fiber Optics, Phone Available, Public, Street Lights, Underground Utilities, Water Available, Water Connected

Exterior Information

PropertySubType
Single Family Residence
Construction Materials
Block, Stucco
Exterior Features
Irrigation System, Lighting, Sidewalk, Sliding Doors
Foundation Details
Slab
Lot Size Acres
0.11
Lot Size Square Feet
5000
Roof
Shingle

Additional Information

Community Features
Community Mailbox, Golf Carts OK, Playground, Sidewalks
Country
US
County / Parish
Lake
Postal Code
34705
Street Name
TULA LOOP
Street Number
13299
Tax Year
2025
Total Acreage
0 to less than 1/4
Year Built
2025

Financial and Legal Information

Association Fee Frequency
Monthly
Association Fee Includes
Internet
Association Fee Requirement
Required
Association Fee
95
Cumulative Days On Market
45
Days On Market
45
Flood Zone Code
X
List Price
$319900.00
Listing Contract Date
July 7, 2025
Monthly HOA Amount
95
Original List Price
333900
Parcel Number
292026020000007900
Pets Allowed
Yes
Special Listing Conditions
None
Tax Annual Amount
1003.83
Tax Book Number
47-55
Tax Lot
79
Zoning
MPUD
Tax Legal Description
TULA PARC - PHASE 1 PB 85 PG 47-55 LOT 79

Learn More About This Property

CAPTCHA
"