1230 GOLDEN

Basic Information

List Status
Active
Property Type
Residential
Last Updated
MLS Listing Updated
Created
Address

1230 GOLDEN
ORLANDO, FL 32804
United States

Current Price
$985,000.00
Square Feet
3137
Price Per Square Foot
$313.99
List Office Name
FANNIE HILLMAN & ASSOCIATES
List Agent Full Name
Maria Van Warner
Subdivision Name
SPRING LAKE TERRACE

Interior Information

Appliances
Dishwasher, Range, Refrigerator
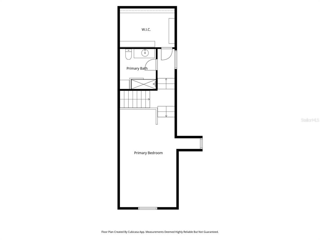
Bedrooms
4
Bathrooms
4
Bathrooms Full
3
Bathrooms Half
1
Cooling
Central Air, Wall/Window Unit(s)
Flooring
Carpet, Hardwood
Heating
Central
Interior Features
Built-in Features, Ceiling Fan(s), Crown Molding, High Ceilings, PrimaryBedroom Upstairs, Solid Surface Counters, Solid Wood Cabinets, Split Bedroom, Thermostat, Walk-In Closet(s), Window Treatments
Utilities
Cable Available, Electricity Connected, Natural Gas Connected, Public, Sewer Connected, Water Connected

Exterior Information

PropertySubType
Single Family Residence
Construction Materials
Stucco, Wood Frame
Exterior Features
Courtyard, French Doors, Irrigation System, Sidewalk
Foundation Details
Crawlspace
Lot Size Acres
0.25
Lot Size Square Feet
11070
Lot Features
City Lot, Oversized Lot, Sidewalk
Roof
Shingle

Additional Information

Country
US
County / Parish
Orange
Postal Code
32804
Street Name
GOLDEN
Street Number
1230
Street Suffix
LANE
Tax Year
2025
Total Acreage
1/4 to less than 1/2
Year Built
1925

Financial and Legal Information

Cumulative Days On Market
8
Days On Market
8
Flood Zone Code
X
List Price
$985000.00
Listing Contract Date
October 10, 2025
Original List Price
985000
Parcel Number
222229825205050
Special Listing Conditions
None
Tax Annual Amount
11760
Tax Book Number
N/6
Tax Lot
050
Zoning
ORL-R-1AA/T
Tax Legal Description
SPRING LAKE TERRACE N/6 LOT 5 & E 30 FT OF N END & 27.84 FT ON S OF LOT 4 BLK 5

Learn More About This Property

CAPTCHA
"