1217 6TH

Basic Information

List Status
Active
Property Type
Residential
Last Updated
MLS Listing Updated
Created
Address

1217 6TH
SANFORD, FL 32771
United States

Current Price
$285,000.00
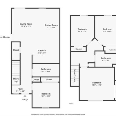
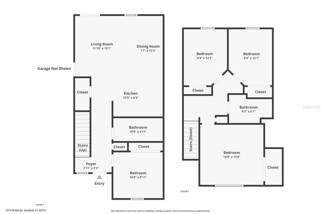
Square Feet
1432
Price Per Square Foot
$199.02
List Office Name
MERDIAN REALTY LLC
List Agent Full Name
Matt Merdian
Subdivision Name
SEMINOLE PARK

Interior Information

Appliances
Dishwasher, Electric Water Heater, Microwave, Range, Refrigerator
Bedrooms
4
Bathrooms
2
Bathrooms Full
2
Cooling
Central Air
Flooring
Luxury Vinyl, Vinyl
Heating
Central
Interior Features
Ceiling Fan(s), Window Treatments
Utilities
Cable Connected, Electricity Connected, Public, Sewer Connected

Exterior Information

PropertySubType
Townhouse
Construction Materials
Block
Exterior Features
Sliding Doors
Foundation Details
Slab
Lot Size Acres
0.09
Lot Size Square Feet
3991
Roof
Shingle

Additional Information

Community Features
None
Country
US
County / Parish
Seminole
Postal Code
32771
Street Name
6TH
Street Number
1217
Street Suffix
STREET
Tax Year
2024
Total Acreage
0 to less than 1/4
Year Built
2007

Financial and Legal Information

Association Fee Includes
None
Cumulative Days On Market
138
Days On Market
138
Flood Zone Code
X
Flood Zone Date
September 9, 2007
Flood Zone Panel
12117C0070F
List Price
$285000.00
Listing Contract Date
November 11, 2025
Original List Price
299750
Parcel Number
2519305AI08150020
Special Listing Conditions
None
Tax Annual Amount
696.06
Tax Book Number
2-75
Tax Lot
2
Zoning
MR2
Tax Legal Description
LOT 2 (LESS W 1.5 FT) BLK 8 TR 15 SEMINOLE PARK PB 2 PG 75

Learn More About This Property

CAPTCHA
"