12006 SAWGRASS RESERVE

Basic Information

List Status
Active
Property Type
Residential
Last Updated
MLS Listing Updated
Created
Address

12006 SAWGRASS RESERVE
ORLANDO, FL 32824
United States

Current Price
$770,000.00
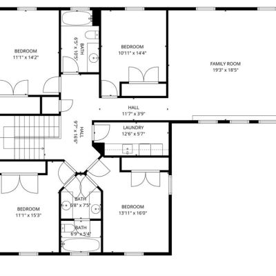
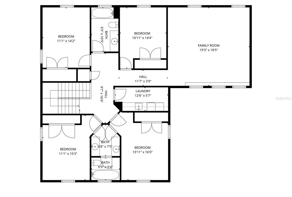
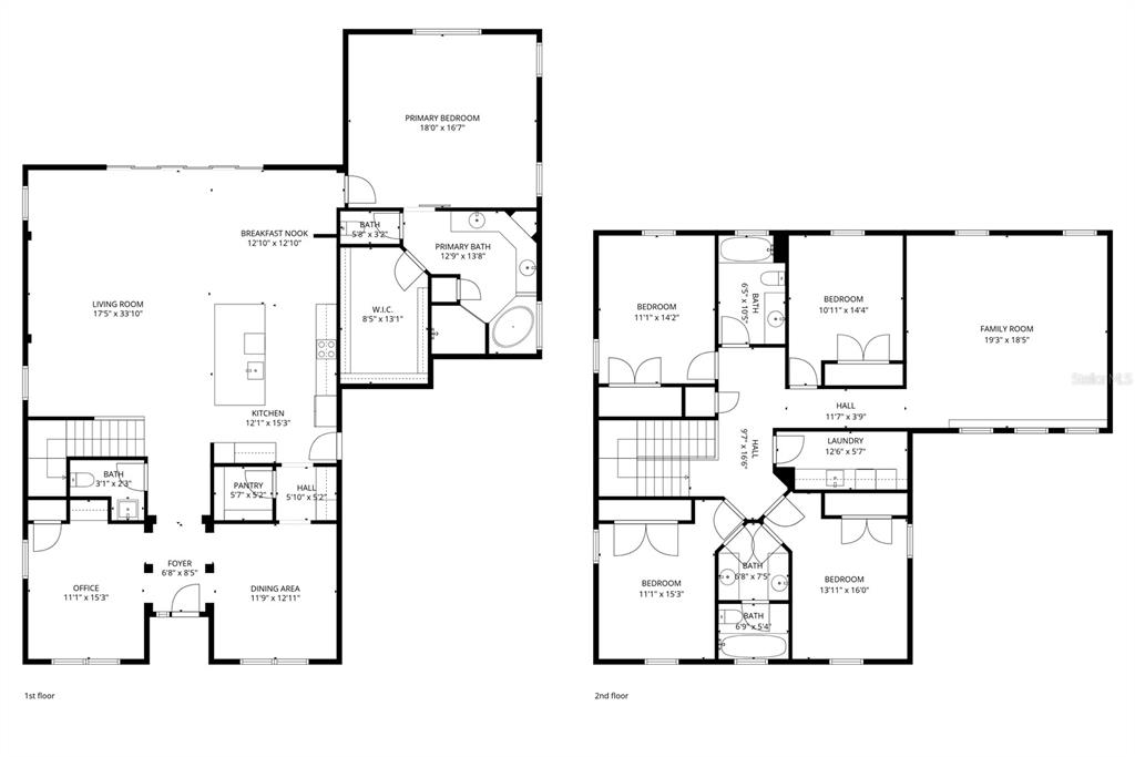
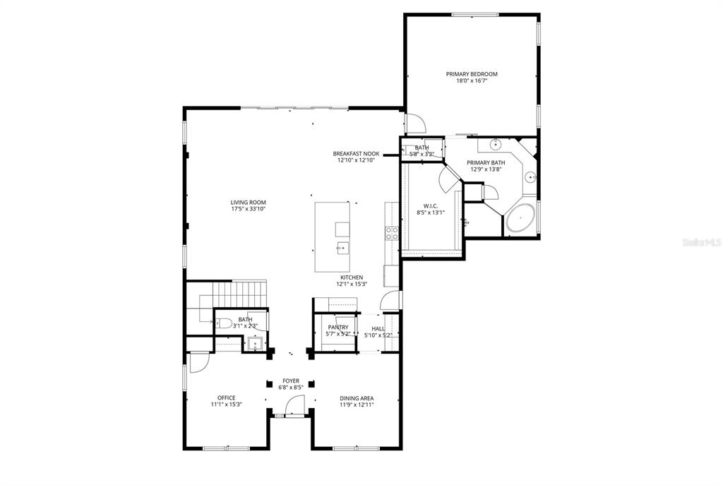
Square Feet
3740
Price Per Square Foot
$205.88
List Office Name
REAL BROKER, LLC
List Agent Full Name
Ken Pozek
Subdivision Name
RESERVE/SAWGRASS PH 1

Interior Information

Appliances
Built-In Oven, Cooktop, Dryer, Microwave, Range, Refrigerator, Washer
Bedrooms
5
Bathrooms
4
Bathrooms Full
3
Bathrooms Half
1
Cooling
Central Air
Flooring
Tile
Heating
Central
Interior Features
Eating Space In Kitchen, Kitchen/Family Room Combo, Primary Bedroom Main Floor, Walk-In Closet(s)
Pet Restrictions
Buyer to verify directly with the HOA
Utilities
Public

Exterior Information

PropertySubType
Single Family Residence
Construction Materials
Block, Stucco
Exterior Features
Lighting, Rain Gutters, Sidewalk, Sliding Doors
Foundation Details
Slab
Lot Size Acres
0.19
Lot Size Square Feet
8400
Roof
Shingle

Additional Information

Community Features
Dog Park, Playground, Pool, Sidewalks
Country
US
County / Parish
Orange
Postal Code
32824
Street Name
SAWGRASS RESERVE
Street Number
12006
Street Suffix
BOULEVARD
Tax Year
2024
Total Acreage
0 to less than 1/4
Year Built
2016

Financial and Legal Information

Association Fee Frequency
Quarterly
Association Fee Requirement
Required
Association Fee
235
Cumulative Days On Market
5
Days On Market
5
Flood Zone Code
X
Flood Zone Date
September 9, 2009
Flood Zone Panel
12095C0440F
List Price
$770000.00
Listing Contract Date
March 3, 2026
Monthly HOA Amount
78.33
Original List Price
770000
Parcel Number
192430730000330
Pets Allowed
Yes
Special Listing Conditions
None
Tax Annual Amount
9881
Tax Book Number
80/126
Tax Lot
33
Zoning
P-D
Tax Legal Description
RESERVE AT SAWGRASS - PHASE 1 80/126 LOT33

Learn More About This Property

CAPTCHA
"