11650 OLD GRADE
Basic Information
List Status
Active
Property Type
Residential
Address
11650 OLD GRADE
POLK CITY, FL 33868
United States
Current Price
$625,000.00
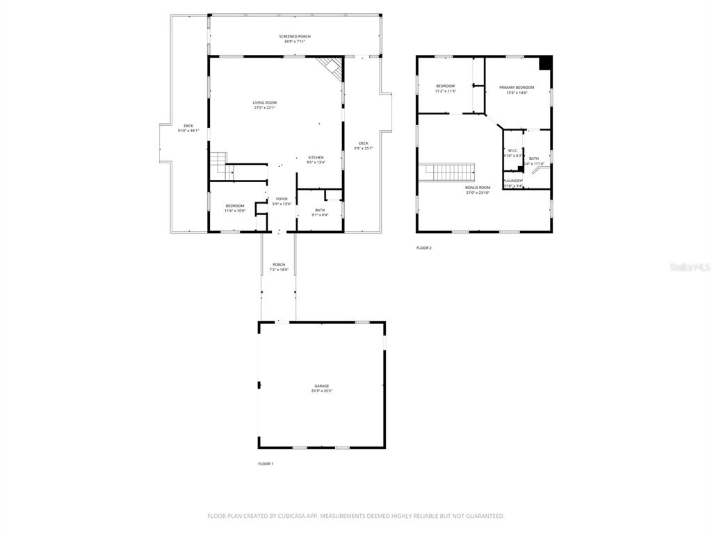
Square Feet
2016
Price Per Square Foot
$310.02
List Office Name
LOCKHART & ASSOCIATES INC
List Agent Full Name
Steve Lockhart
Subdivision Name
NOT APPLICABLE
Interior Information
Appliances
Dishwasher, Electric Water Heater, Range, Refrigerator
Bedrooms
3
Bathrooms
2
Bathrooms Full
2
Cooling
Central Air
Flooring
Hardwood
Heating
Central, Electric
Interior Features
Ceiling Fan(s), PrimaryBedroom Upstairs, Window Treatments
Utilities
Electricity Connected
Exterior Information
PropertySubType
Single Family Residence
Construction Materials
Wood Frame, Wood Siding
Exterior Features
Private Mailbox
Foundation Details
Crawlspace
Lot Size Acres
4.07
Lot Size Square Feet
177411
Lot Features
Cleared, In County, Level
Roof
Metal
Additional Information
Country
US
County / Parish
Polk
Postal Code
33868
Street Name
OLD GRADE
Street Number
11650
Street Suffix
ROAD
Tax Year
2024
Total Acreage
2 to less than 5
Year Built
2009
Financial and Legal Information
Cumulative Days On Market
20
Days On Market
20
Flood Zone Code
X
Flood Zone Date
December 12, 2016
Flood Zone Panel
12105C0185G
List Price
$625000.00
Listing Contract Date
November 11, 2025
Original List Price
625000
Parcel Number
252624000000011010
Special Listing Conditions
None
Tax Annual Amount
1804.5
Tax Book Number
P-81
Zoning
RC
Tax Legal Description
E1/2 OF SE1/4 OF NE1/4 OF NE1/4 LESS S 25 FT & LESS R/W FOR SR 557-A