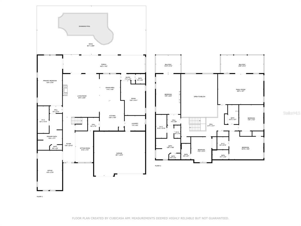
11637 BRICKYARD POND

Basic Information

List Status
Active
Property Type
Residential
Last Updated
MLS Listing Updated
Created
Address

11637 BRICKYARD POND
WINDERMERE, FL 34786
United States

Current Price
$1,499,998.00
Square Feet
5120
Price Per Square Foot
$292.97
List Office Name
RE/MAX 200 REALTY
List Agent Full Name
John Muccigrosso, PA
Subdivision Name
LAKE BURDEN SOUTH PH 2

Interior Information

Appliances
Bar Fridge, Built-In Oven, Convection Oven, Dishwasher, Disposal, Electric Water Heater, Exhaust Fan, Microwave, Range, Range Hood, Refrigerator, Wine Refrigerator
Bedrooms
5
Bathrooms
6
Bathrooms Full
5
Bathrooms Half
1
Cooling
Central Air
Flooring
Luxury Vinyl, Tile
Heating
Central, Electric
Interior Features
Built-in Features, Cathedral Ceiling(s), Ceiling Fan(s), Crown Molding, Eating Space In Kitchen, High Ceilings, Open Floorplan, Primary Bedroom Main Floor, PrimaryBedroom Upstairs, Solid Surface Counters, Solid Wood Cabinets, Split Bedroom, Thermostat, Tray Ceiling(s), Vaulted Ceiling(s), Walk-In Closet(s)
Pet Restrictions
verify restrictions with HOA
Utilities
BB/HS Internet Available, Cable Connected, Solar, Street Lights

Exterior Information

PropertySubType
Single Family Residence
Construction Materials
Block, Stone, Stucco
Exterior Features
Balcony, French Doors, Irrigation System, Lighting, Rain Gutters, Sidewalk, Sliding Doors
Foundation Details
Slab
Lot Size Acres
0.84
Lot Size Square Feet
36499
Lot Features
Cul-De-Sac, Level, Sidewalk
Roof
Tile

Additional Information

Community Features
Pool
Country
US
County / Parish
Orange
Postal Code
34786
Street Name
BRICKYARD POND
Street Number
11637
Street Suffix
LANE
Tax Year
2024
Total Acreage
1/2 to less than 1
Year Built
2014

Financial and Legal Information

Association Fee Frequency
Monthly
Association Fee Requirement
Required
Association Fee
90.67
Cumulative Days On Market
64
Days On Market
64
Flood Zone Code
X
List Price
$1499998.00
Listing Contract Date
July 7, 2025
Monthly HOA Amount
90.67
Original List Price
1690000
Parcel Number
252327432101690
Pets Allowed
Yes
Special Listing Conditions
None
Tax Annual Amount
16896.11
Tax Book Number
79-3240
Tax Lot
169
Zoning
P-D
Tax Legal Description
LAKE BURDEN SOUTH PHASE 2 79/32 LOT 169

Learn More About This Property

CAPTCHA
"