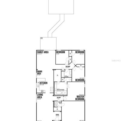
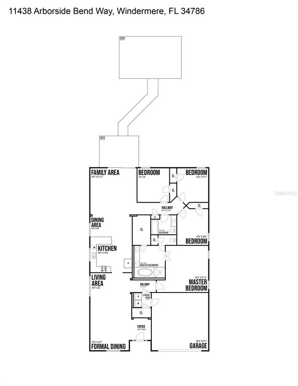
11438 ARBORSIDE BEND

Basic Information

List Status
Active
Property Type
Residential
Last Updated
MLS Listing Updated
Created
Address

11438 ARBORSIDE BEND
WINDERMERE, FL 34786
United States

Current Price
$635,000.00
Square Feet
2019
Price Per Square Foot
$314.51
List Office Name
SERHANT
List Agent Full Name
Zoe Attwood
Subdivision Name
GLENMUIR 48 39

Interior Information

Appliances
Cooktop, Dishwasher, Electric Water Heater, Microwave, Range, Refrigerator
Bedrooms
4
Bathrooms
2
Bathrooms Full
2
Cooling
Central Air
Flooring
Carpet, Ceramic Tile
Heating
Central, Electric
Interior Features
Ceiling Fan(s), High Ceilings, Kitchen/Family Room Combo, Living Room/Dining Room Combo, Open Floorplan, Stone Counters, Thermostat, Walk-In Closet(s)
Pet Restrictions
Verify with HOA
Utilities
BB/HS Internet Available, Cable Available, Electricity Connected, Sewer Connected, Water Connected

Exterior Information

PropertySubType
Single Family Residence
Construction Materials
Block
Exterior Features
Courtyard, Garden, Irrigation System, Private Mailbox
Foundation Details
Slab
Lot Size Acres
0.25
Lot Size Square Feet
10855
Roof
Tile

Additional Information

Community Features
Gated Community - No Guard, Park, Playground, Sidewalks
Country
US
County / Parish
Orange
Postal Code
34786
Street Name
ARBORSIDE BEND
Street Number
11438
Street Suffix
WAY
Tax Year
2024
Total Acreage
1/4 to less than 1/2
Year Built
2002

Financial and Legal Information

Association Fee Frequency
Monthly
Association Fee Requirement
Required
Association Fee
170
Cumulative Days On Market
107
Days On Market
107
Flood Zone Code
X
Flood Zone Date
September 9, 2009
Flood Zone Panel
12095C0385F
List Price
$635000.00
Listing Contract Date
November 11, 2025
Monthly HOA Amount
170
Original List Price
655000
Parcel Number
242327269401150
Pets Allowed
Yes
Special Listing Conditions
None
Tax Annual Amount
4420.87
Tax Book Number
2694
Tax Lot
115
Zoning
P-D
Tax Legal Description
GLENMUIR UNIT 1 48/39 LOT 115

Learn More About This Property

CAPTCHA
"