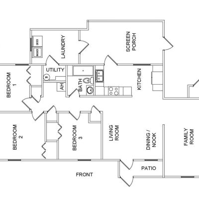
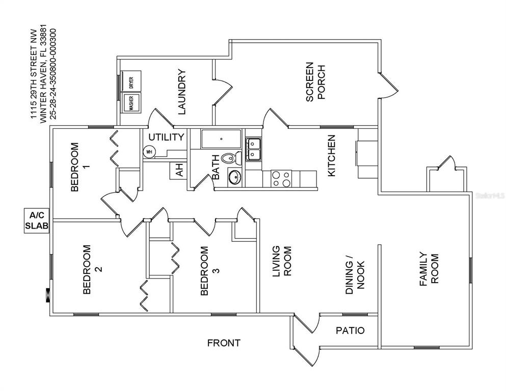
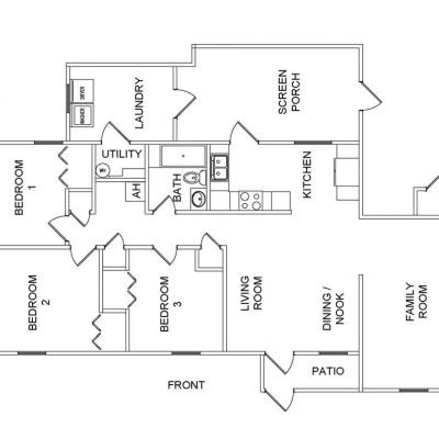
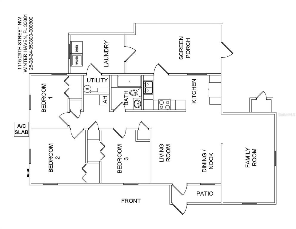
1115 29TH
Basic Information
List Status
Active
Property Type
Residential
Address
1115 29TH
WINTER HAVEN, FL 33881
United States
Current Price
$214,950.00
Square Feet
1129
Price Per Square Foot
$190.39
List Office Name
PORCHLIGHT HOMES LLC
List Agent Full Name
Angie Reynolds
Subdivision Name
ROSEWOOD MANOR
Interior Information
Appliances
Electric Water Heater, Microwave, Range, Refrigerator
Bedrooms
3
Bathrooms
1
Bathrooms Full
1
Cooling
Central Air
Flooring
Carpet, Laminate, Tile
Heating
Central
Interior Features
Ceiling Fan(s)
Utilities
Electricity Connected, Public, Water Connected
Exterior Information
PropertySubType
Single Family Residence
Construction Materials
Block
Exterior Features
Other, Storage
Foundation Details
Slab
Lot Size Acres
0.22
Lot Size Square Feet
9744
Roof
Shingle
Additional Information
Country
US
County / Parish
Polk
Postal Code
33881
Street Name
29TH
Street Number
1115
Street Suffix
STREET
Tax Year
2025
Total Acreage
0 to less than 1/4
Year Built
1955
Financial and Legal Information
Cumulative Days On Market
120
Days On Market
120
Flood Zone Code
X
Flood Zone Date
December 12, 2016
Flood Zone Panel
12105C0345G
List Price
$214950.00
Listing Contract Date
October 10, 2025
Original List Price
229950
Parcel Number
252824350800000300
Special Listing Conditions
None
Tax Annual Amount
785
Tax Book Number
37-3
Tax Lot
30
Zoning
R-1
Tax Legal Description
ROSEWOOD MANOR PB 37 PG 3 LOT 30