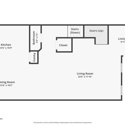
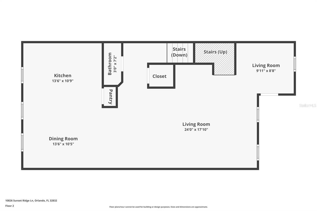
10826 SUNSET RIDGE

Basic Information

List Status
Active
Property Type
Residential
Last Updated
MLS Listing Updated
Created
Address

10826 SUNSET RIDGE
ORLANDO, FL 32832
United States

Current Price
$419,000.00
Square Feet
2250
Price Per Square Foot
$186.22
List Office Name
KELLER WILLIAMS ADVANTAGE III
List Agent Full Name
Yosseff Roman
Subdivision Name
RAVINA/EAST PARK

Interior Information

Appliances
Built-In Oven, Dishwasher, Range, Refrigerator
Bedrooms
3
Bathrooms
4
Bathrooms Full
2
Bathrooms Half
2
Cooling
Central Air
Flooring
Hardwood
Heating
Central
Interior Features
Ceiling Fan(s), Eating Space In Kitchen, PrimaryBedroom Upstairs
Pet Restrictions
Buyer to verify with HOA. Buyer to verify exotic pets with the city of Orlando.
Utilities
Electricity Available, Electricity Connected, Sewer Available, Sewer Connected, Water Available, Water Connected

Exterior Information

PropertySubType
Townhouse
Construction Materials
Stucco, Wood Frame
Exterior Features
Balcony, Sidewalk
Foundation Details
Slab
Lot Size Acres
0.05
Lot Size Square Feet
2161
Lot Features
Sidewalk
Roof
Shingle

Additional Information

Community Features
Playground, Sidewalks, Tennis Court(s)
Country
US
County / Parish
Orange
Postal Code
32832
Street Name
SUNSET RIDGE
Street Number
10826
Street Suffix
LANE
Tax Year
2025
Total Acreage
0 to less than 1/4
Year Built
2014

Financial and Legal Information

Association Fee Frequency
Monthly
Association Fee Includes
Maintenance Structure, Recreational Facilities
Association Fee Requirement
Required
Association Fee
505
Cumulative Days On Market
20
Days On Market
20
Flood Zone Code
AE
Flood Zone Date
June 6, 2018
Flood Zone Panel
12095C0465G
List Price
$419000.00
Listing Contract Date
January 1, 2026
Monthly HOA Amount
505
Original List Price
430000
Parcel Number
082431805000290
Pets Allowed
Yes
Special Listing Conditions
None
Tax Annual Amount
995.24
Tax Book Number
00
Tax Lot
29
Zoning
PD
Tax Legal Description
RAVINIA AT EAST PARK 79/28 LOT 29

Learn More About This Property

CAPTCHA
"