1041 BELFAST

Basic Information

List Status
Active
Property Type
Residential
Last Updated
MLS Listing Updated
Created
Address

1041 BELFAST
CHULUOTA, FL 32766
United States

Current Price
$1,150,000.00
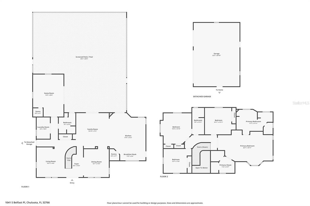
Square Feet
3397
Price Per Square Foot
$338.53
List Office Name
RE/MAX TOWN & COUNTRY REALTY
List Agent Full Name
Tanya McDonnell
Subdivision Name
KILLALOE BY THE LAKE

Interior Information

Appliances
Built-In Oven, Cooktop, Dishwasher, Dryer, Microwave, Refrigerator, Washer, Water Softener
Bedrooms
4
Bathrooms
3
Bathrooms Full
3
Cooling
Central Air
Flooring
Ceramic Tile, Hardwood
Heating
Central
Interior Features
Built-in Features, Eating Space In Kitchen, High Ceilings, Kitchen/Family Room Combo, PrimaryBedroom Upstairs, Sauna, Solid Wood Cabinets, Walk-In Closet(s), Window Treatments
Pet Restrictions
Buyer to confirm restrictions with HOA/City/County.
Utilities
Cable Available, Electricity Connected, Propane, Sprinkler Well

Exterior Information

PropertySubType
Single Family Residence
Construction Materials
HardiPlank Type
Exterior Features
French Doors, Irrigation System, Outdoor Shower, Private Mailbox
Foundation Details
Slab
Lot Size Acres
1.03
Lot Size Square Feet
44826
Lot Features
Conservation Area, Cul-De-Sac, In County
Roof
Metal

Additional Information

Community Features
Community Boat Ramp, Dock, Fishing, Lake, Water Access, Association Recreation - Owned, Deed Restrictions
Country
US
County / Parish
Seminole
Postal Code
32766
Street Name
BELFAST
Street Number
1041
Street Suffix
PLACE
Tax Year
2025
Total Acreage
1 to less than 2
Year Built
2000

Financial and Legal Information

Association Fee Frequency
Quarterly
Association Fee Includes
Escrow Reserves Fund, Manager
Association Fee Requirement
Required
Association Fee
340
Cumulative Days On Market
7
Days On Market
7
Flood Zone Code
X
Flood Zone Date
September 9, 2007
Flood Zone Panel
12117C0305F
List Price
$1150000.00
Listing Contract Date
November 11, 2025
Monthly HOA Amount
113.33
Original List Price
1150000
Parcel Number
34213250200000300
Pets Allowed
Yes
Special Listing Conditions
None
Tax Annual Amount
5289.16
Tax Book Number
42-37
Tax Lot
30
Zoning
A-1
Tax Legal Description
LOT 30 KILLALOE BY THE LAKE PB 42 PGS 37 TO 40

Learn More About This Property

CAPTCHA
"