1026 MONTGOMERY

Basic Information

List Status
Active
Property Type
Residential
Last Updated
MLS Listing Updated
Created
Address

1026 MONTGOMERY
POLK CITY, FL 33868
United States

Current Price
$375,000.00
Square Feet
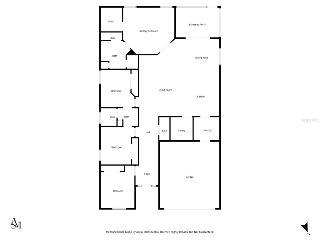
2081
Price Per Square Foot
$180.20
List Office Name
STAR REALTY OF WINTER HAVEN
List Agent Full Name
CarLee Marchetti
Subdivision Name
AUBURN COVE

Interior Information

Appliances
Dishwasher, Disposal, Electric Water Heater, Microwave, Range, Refrigerator
Bedrooms
4
Bathrooms
3
Bathrooms Full
2
Bathrooms Half
1
Cooling
Central Air
Flooring
Carpet, Vinyl
Heating
Central, Electric
Interior Features
Ceiling Fan(s), Living Room/Dining Room Combo, Open Floorplan, Split Bedroom, Thermostat, Walk-In Closet(s)
Pet Restrictions
Buyer and buyer's agent to verify any and all pet restrictions, including breed limitations, directly with the HOA.
Utilities
Cable Available

Exterior Information

PropertySubType
Single Family Residence
Construction Materials
Block, Stucco
Exterior Features
Sidewalk, Sliding Doors
Foundation Details
Block, Slab
Lot Size Acres
0.19
Lot Size Square Feet
8276
Roof
Shingle

Additional Information

Community Features
Community Mailbox, Dog Park, Sidewalks
Country
US
County / Parish
Polk
Postal Code
33868
Street Name
MONTGOMERY
Street Number
1026
Street Suffix
LANE
Tax Year
2024
Total Acreage
0 to less than 1/4
Year Built
2022

Financial and Legal Information

Association Fee Frequency
Annually
Association Fee Includes
Maintenance Grounds
Association Fee Requirement
Required
Association Fee
600
Cumulative Days On Market
2
Days On Market
2
Flood Zone Code
X
List Price
$375000.00
Listing Contract Date
October 10, 2025
Monthly HOA Amount
50
Original List Price
375000
Parcel Number
252708298378001120
Pets Allowed
Cats OK, Dogs OK, Yes
Special Listing Conditions
None
Tax Annual Amount
4168
Tax Book Number
187/38-41
Tax Legal Description
AUBURN COVE PHASES 2 & 3 PB 187 PGS 38-41 LOT 112

Learn More About This Property

CAPTCHA
"