10236 BEECHWOOD

Basic Information

List Status
Active
Property Type
Residential
Last Updated
MLS Listing Updated
Created
Address

10236 BEECHWOOD
ORLANDO, FL 32832
United States

Current Price
$859,900.00
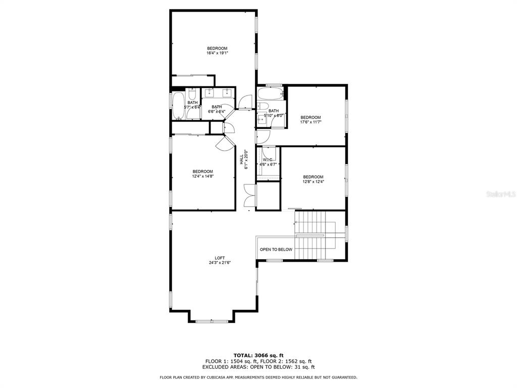
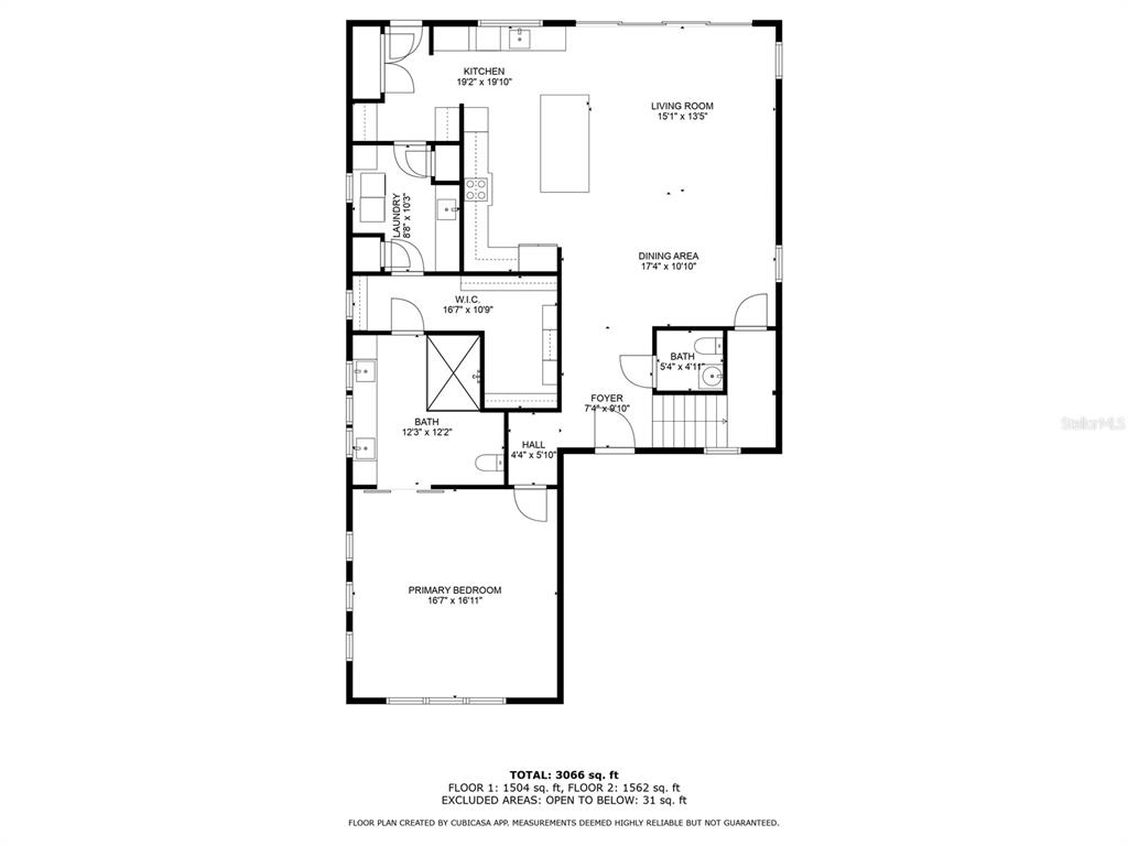
Square Feet
3409
Price Per Square Foot
$252.24
List Office Name
KELLER WILLIAMS ELITE PARTNERS III REALTY
List Agent Full Name
Ken Pozek
Subdivision Name
EAGLE CRK VILLAGE K PH 1A

Interior Information

Appliances
Cooktop, Dishwasher, Dryer, Microwave, Range Hood, Refrigerator, Washer
Bedrooms
4
Bathrooms
4
Bathrooms Full
3
Bathrooms Half
1
Cooling
Central Air
Flooring
Carpet, Tile
Heating
Central, Electric
Interior Features
Ceiling Fan(s), Eating Space In Kitchen, Kitchen/Family Room Combo, Living Room/Dining Room Combo, Open Floorplan, Primary Bedroom Main Floor, Split Bedroom
Pet Restrictions
BUYER TO VERIFY DIRECTLY WITH THE HOA.
Utilities
Public

Exterior Information

PropertySubType
Single Family Residence
Construction Materials
Block, Stucco
Exterior Features
Balcony, Sidewalk, Sliding Doors
Foundation Details
Slab
Lot Size Acres
0.16
Lot Size Square Feet
6752
Roof
Concrete, Tile

Additional Information

Community Features
Clubhouse, Deed Restrictions, Dog Park, Fitness Center, Gated Community - Guard, Golf Carts OK, Golf, Irrigation-Reclaimed Water, Park, Pool, Sidewalks, Tennis Court(s)
Country
US
County / Parish
Orange
Postal Code
32832
Street Name
BEECHWOOD
Street Number
10236
Street Suffix
LANE
Tax Year
2024
Total Acreage
0 to less than 1/4
Year Built
2022

Financial and Legal Information

Association Fee Frequency
Quarterly
Association Fee Includes
24-Hour Guard, Community Pool, Manager, Security
Association Fee Requirement
Required
Association Fee
550
Cumulative Days On Market
197
Days On Market
197
Flood Zone Code
X
List Price
$859900.00
Listing Contract Date
January 1, 2025
Monthly HOA Amount
183.33
Original List Price
960000
Parcel Number
322431230200490
Pets Allowed
Yes
Special Listing Conditions
None
Tax Annual Amount
9720.74
Tax Book Number
95/58
Tax Lot
49
Zoning
P-D
Tax Legal Description
EAGLE CREEK VILLAGE K PHASE 1A 96/58 LOT49

Learn More About This Property

CAPTCHA
"