550 PALMER

Basic Information

List Status
Active
Property Type
Residential
Last Updated
MLS Listing Updated
Created
Address

550 PALMER
WINTER PARK, FL 32789
United States

Current Price
$6,895,000.00
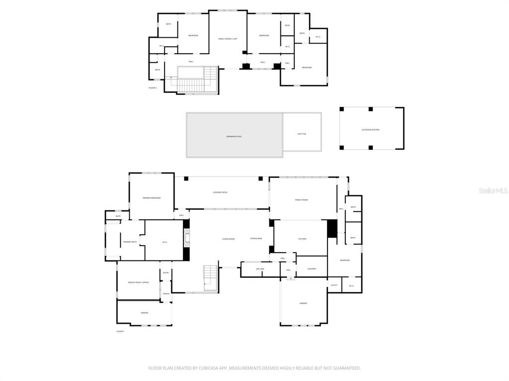
Square Feet
5939
Price Per Square Foot
$1160.97
List Office Name
FANNIE HILLMAN & ASSOCIATES
List Agent Full Name
John McDade
Subdivision Name
OSCEOLA PLACE

Interior Information

Appliances
Convection Oven, Dishwasher, Disposal, Exhaust Fan, Freezer, Gas Water Heater, Microwave, Range, Range Hood, Refrigerator, Tankless Water Heater, Wine Refrigerator
Bedrooms
5
Bathrooms
7
Bathrooms Full
6
Bathrooms Half
1
Cooling
Central Air, Humidity Control, Zoned
Flooring
Engineered Hardwood, Porcelain Tile
Heating
Central, Heat Recovery Unit, Zoned
Interior Features
Built-in Features, Crown Molding, Dry Bar, Eating Space In Kitchen, High Ceilings, In Wall Pest System, Kitchen/Family Room Combo, Living Room/Dining Room Combo, Open Floorplan, Primary Bedroom Main Floor, Solid Wood Cabinets, Split Bedroom, Stone Counters, Thermostat, Walk-In Closet(s)
Utilities
Electricity Connected, Natural Gas Connected, Public, Sewer Connected, Street Lights, Underground Utilities, Water Connected

Exterior Information

PropertySubType
Single Family Residence
Construction Materials
Block, Stucco
Exterior Features
Irrigation System, Lighting, Rain Gutters, Sliding Doors
Foundation Details
Slab
Lot Size Acres
0.48
Lot Size Square Feet
20997
Lot Features
City Lot, Oversized Lot, Sidewalk
Roof
Concrete, Tile

Additional Information

Country
US
County / Parish
Orange
Postal Code
32789
Street Name
PALMER
Street Number
550
Street Suffix
AVENUE
Tax Year
2025
Total Acreage
1/4 to less than 1/2
Year Built
2025

Financial and Legal Information

Cumulative Days On Market
149
Days On Market
149
Flood Zone Code
X
Flood Zone Date
September 9, 2009
Flood Zone Panel
12095C0255F
List Price
$6895000.00
Listing Contract Date
October 10, 2025
Original List Price
7200000
Parcel Number
052230646800011
Special Listing Conditions
None
Tax Annual Amount
10292
Tax Book Number
H-56
Tax Lot
2
Zoning
R-1AA
Tax Legal Description
OSCEOLA PLACE H/56 THE E 50 FT LOTS 1 &2 (LESS S 25 FT LOT 2) & W 100 FT LOTS 5& 6 (LESS S 55 FT LOT 6)

Learn More About This Property

CAPTCHA
"